EasyManua.ls Logo

Telesis TMP1700 - TMC470 Controller Interface Ports; Serial and Discrete I;O Ports; TTL, TCP;IP, and USB Ports; Auxiliary Axis Port

Telesis TMP1700
10 pages
Print Icon
To Next Page IconTo Next Page
To Next Page IconTo Next Page
To Previous Page IconTo Previous Page
To Previous Page IconTo Previous Page
Loading...
TMP1700/470 Marking System
28575G 7 of 10
Interface Panel
The back panel of the controller provides various ports for
connecting the marker, host computers, logic controllers, optional
accessories, and remote I/O devices. See below.
Serial Interface. The Comm 1 and Comm 2 Ports allow
connection to remote serial devices such as a host computer or a
bar code scanner. See Host Communications for details.
Discrete I/O Interface. The optically-isolated I/O Port allows
you to connect a Programmable Logic Controller (PLC) or other
DC I/O source for remotely controlling marker operations. See
Discrete I/O Controls for details.
TTL Interface. The TTL Port allows the system to connect with
a simple contact closure circuit such as a remote push button
station or foot pedal switch. These types of devices can remotely
control Start Print and Stop Print operations.
TCP/IP Interface. The Ethernet Port typically connects to a PC
over a local area network (LAN). It allows you to define the
controller as a client or a server socket using Telesis Extended
Protocol. See Host Communications for details.
USB Interface. The USB Port allows you to connect a memory
stick/flash drive for pattern storage/retrieval and for software
upgrades.
(optional) Auxiliary Axis Interface. The Auxiliary Axis Port
allows the system to connect with up to four optional motion
devices such as motorized tool posts, rotational drive units, and
linear slides or actuators.
Discrete I/O Controls
The TMC470 is configured for 12 VDC to 24 VDC I/O only and
is provided to connect a PLC or other DC I/O source. The
optically-isolated I/O Port allows you to remotely select and load
patterns, start printing, stop printing, place the marker online, and
monitor the system output signals. Cable connectors and
connector pins are supplied with the controller for constructing
appropriate interface cables.
Input Signals. These input signals provide the following controls:
INPUT COMM ................... For all inputs (+ or – supply)
START PRINT .................. Begins print cycle
STOP ............................... Stops the print cycle
SEL_0 thru _6 * ................ Remotely selects & loads up to
127* pattern files
SPARE_1, 2, 3 .................. Three (3) spares for custom
applications
*
System software allows SEL_6 signal to be configured for remotely
selecting patterns or for remotely placing the marker online. If used for
marker online, pattern selection is reduced to 63 patterns (max).
Output Signals. These output signals indicate the following states:
OUTPUT COMM ............... For all outputs (+ or – supply)
DONE .............................. Print cycle is complete
READY ............................ System ready for message or for start
print command
PAUSED .......................... System paused (waiting timeout or
command)
NO FAULT ....................... System status (normal or fault
detected)
SPARE_1, 2 ...................... Two (2) spares for custom applications
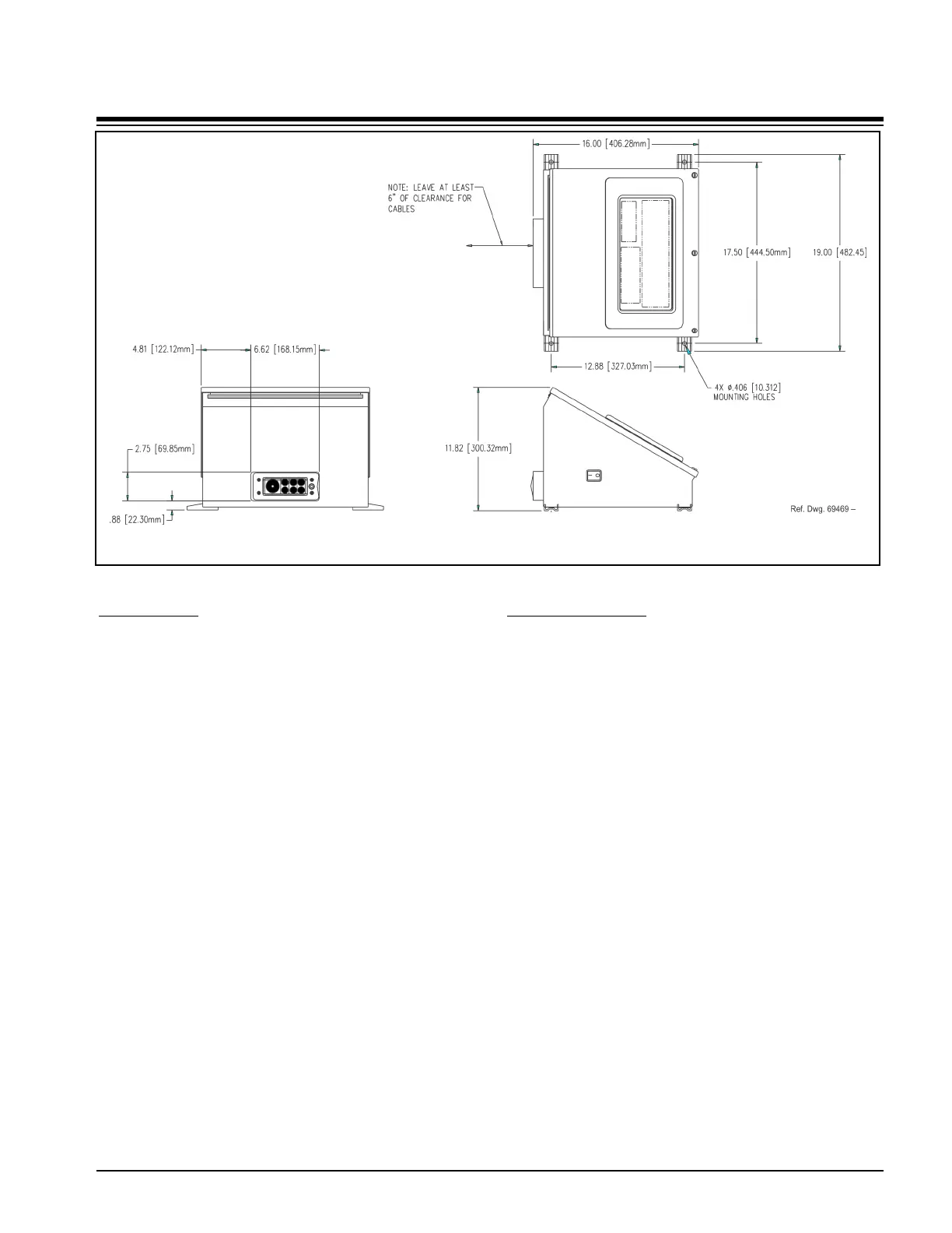
TMC470 Controller Dimensions – Enclosure-mounted Configuration