EasyManua.ls Logo

Temco TFC39-22 - PLANNING YOUR FIREPLACE LOCATION; CHOOSING FIREPLACE LOCATION

Default Icon
20 pages
Print Icon
To Next Page IconTo Next Page
To Next Page IconTo Next Page
To Previous Page IconTo Previous Page
To Previous Page IconTo Previous Page
Loading...
PLANNING AHEAD
CHOOSING THE LOCATION FOR
YOUR FIREPLACE:
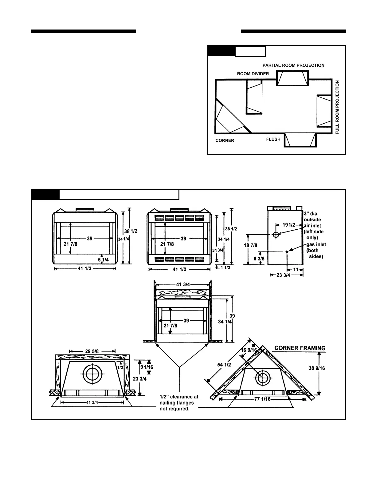
Figure 1 shows some of the many ways your fireplace
may be installed. Consider the traffic pattern in your
room and the location of doors and windows. A corner
location may be best where space is limited.
Your fireplace weighs no more than some of your fine
furniture. If the fireplace is located near a load bearing
wall, additional supports to the foundation will not be
necessary. HEAVY FACINGS SUCH AS BRICK,
STONE, ETC., MAY REQUIRE ADDITIONAL FOUN-
DATION SUPPORT.
ALTHOUGH THIS UNIT MAY BE INSTALLED ON
COMBUSTIBLE SURFACES, IT MUST NOT BE
INSTALLED ON CARPET OR VINYL.
Figure 1 Locations
Figure 2
Fireplace and Framing Dimensions (inches)
4

Related product manuals