EasyManua.ls Logo

Tempstar F97CMN - Page 40

Tempstar F97CMN
74 pages
Print Icon
To Next Page IconTo Next Page
To Next Page IconTo Next Page
To Previous Page IconTo Previous Page
To Previous Page IconTo Previous Page
Loading...
F97CMN and G97CMN: Installation, Start-up, Operating and Service and Maintenance Instructions
Manufacturer reserves the right to change, at any time, specifications and designs without notice and without obligations.
40
1. Using winter design temperature (used in load calculations), find
appropriate temperature for your application and furnace model.
2. Determine the amount of total and exposed vent pipe.
3. Determine required insulation thickness for exposed pipe length(s).
4. When combustion air inlet piping is installed above a suspended
ceiling, the pipe MUST be insulated with moisture resistant
insulation such as Armaflex or other equivalent type of insulation.
5. Insulate combustion air inlet piping when run in warm, humid
spaces.
6. Install the insulation per the insulation manufacturer’s installation
instructions.
NOTE: Pipe length (ft. / M) specified for maximum pipe lengths located
in unconditioned spaces cannot exceed total allowable pipe length as
calculated from Table 11.
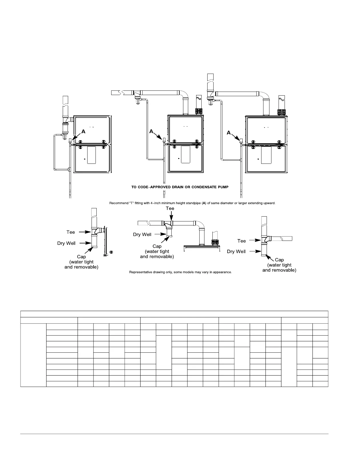
A170122A
Fig. 49 – Recommended Combustion Air Inlet Moisture Trap
NOTE: Maximum Equivalent Vent Length (MEVL) includes standard and concentric vent termination and does NOT include elbows. Use Table 11 -
Deductions from Maximum Equivalent Vent Length to determine allowable vent length for each application.
Table 11 – Maximum Equivalent Vent Length - Ft.
Ft.
Unit Size 60,000 80,000 100,000 120,000
Altitude
(feet)
Pipe Dia. (in)
1 ½ 2 2 ½ 3 1 ½ 2 2 ½ 3 4 2 2 ½ 3 4 2 ½ 3 4
0-2000 50 100 175 200
30
95 130 175 200 45 80 175 200
10
75 185
2001-3000 45 95 165 185
70
125 165 185 40
75
165 185 70 175
3001-4000 40 90 155 175 25 115 155 175 38
155
175 5 65 165
4001-4500
35
85
150
170 23
110
150 165
36
70
170
N/A
60
160
4501-5000 80 165
22
145 160 150 165
5001-6000 37 75 140 155 100 135 150 33 140 155 155
6001-7000 35 70 130 145 20
90
125 140 31 135 145 50 140
7001-8000 32 66 120 135 18 66 120 125 29 66 125 135 46 130
8001-9000 30 62 115 125 17 62 80 110 115 27 62 115 125 43 120
9001-10000 27 57 105 115 15 57 75 100 105 24 57 100 115 39 115

Related product manuals