EasyManua.ls Logo

Terex T25 - Page 32

Terex T25
74 pages
Print Icon
To Next Page IconTo Next Page
To Next Page IconTo Next Page
To Previous Page IconTo Previous Page
To Previous Page IconTo Previous Page
Loading...
Operating Instructions and Parts Manual
32 Terex T25I and T45I Super Quiet Generator
June 2006
REV A
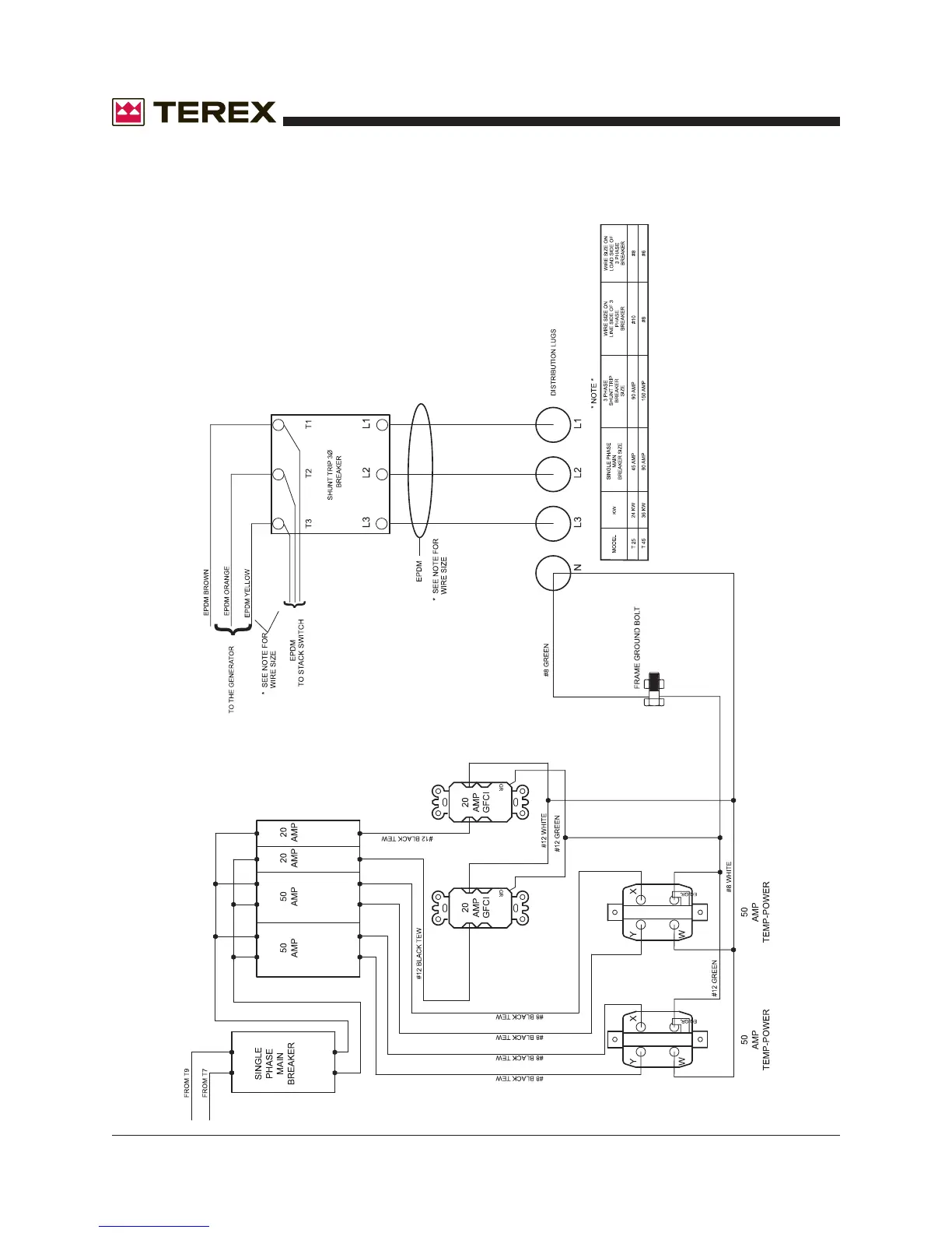
Distribution Panel Wiring
for "C" Series Single PhaseControl
Drawing #ES1000003

Other manuals for Terex T25

Related product manuals