EasyManua.ls Logo

Tesla WD460M - Connection of Drain Hoses; Drain Hose Management

Tesla WD460M
156 pages
Print Icon
To Next Page IconTo Next Page
To Next Page IconTo Next Page
To Previous Page IconTo Previous Page
To Previous Page IconTo Previous Page
Loading...
12
ENG
How to connect the safety supply hose
1. Pull the safety supply hoses completely out from storage compartment located at the rear of dishwasher.
2. Tighter the screws of the safety supply hose to the faucet with thread 3/4inch.
3. Turn water fully on before starting the dishwasher.
How to disconnect the safety supply hose
1. Turn off the water.
2. Unscrew the safety supply hose from the faucet.
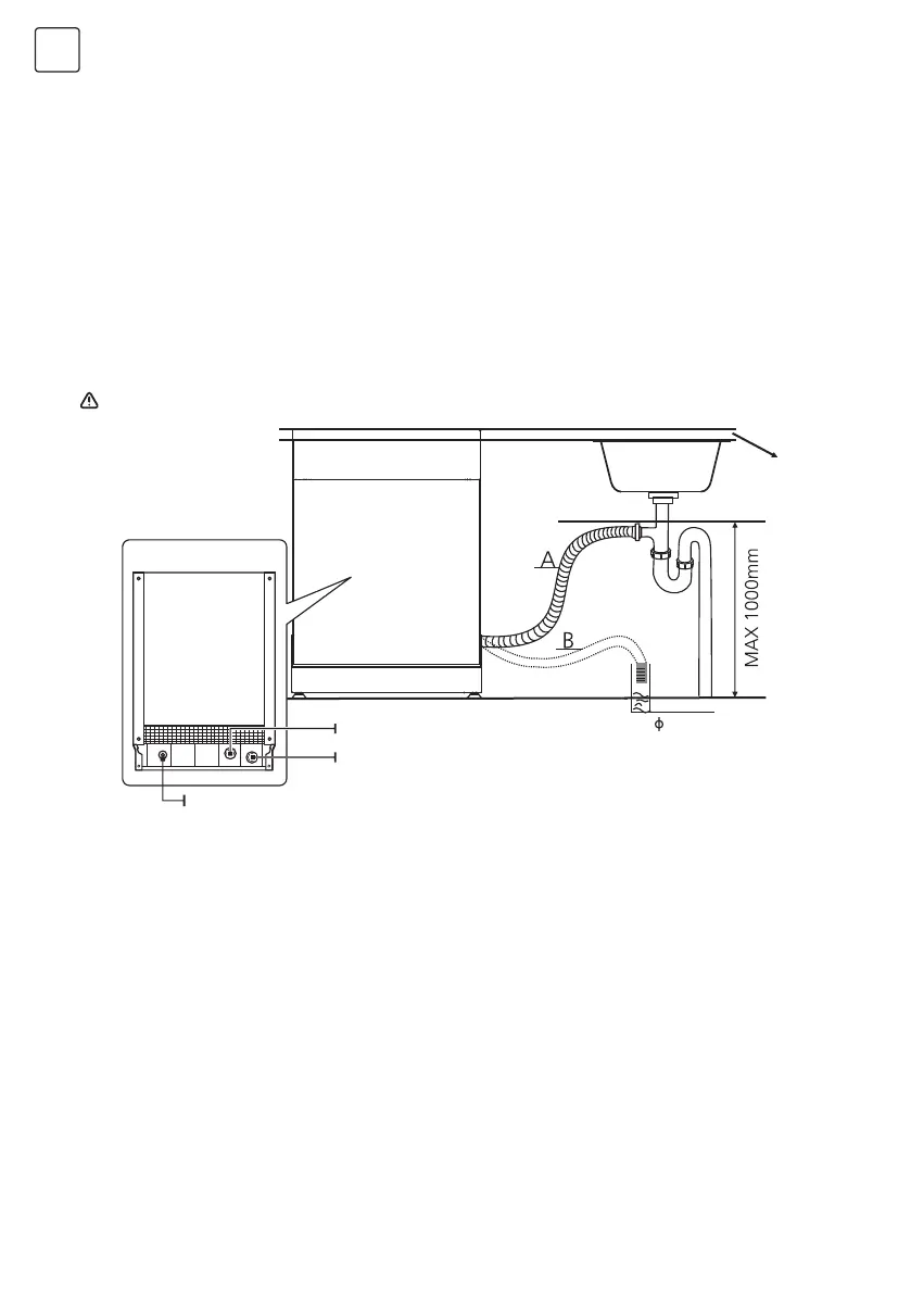
Connection of Drain Hoses
Insert the drain hose into a drain pipe with a minimum diameter of 4 cm, or let it run into the sink, making sure to
avoid bending or crimping it. The height of drain pipe must be less than 1000mm. The free end of the hose must
not be immersed in water to avoid back flow.
Please securely fix the drain hose in either position A or position B
How to drain excess water from hoses
If the sink is 1000 higher from the floor, the excess water in hoses cannot be drained directly into the sink. It will be
necessary to drain excess water from hoses into a bowl or suitable container that is held outside and lower than the
sink.
Water outlet
Connect the water drain hose. The drain hose must be correctly fitted to avoid water
leaks. Ensure that the water drain hose is not kinked or squashed.
Extension hose
If you need a drain hose extension, make sure to use a similar drain hose.
It must be no longer than 4 meters; otherwise the cleaning effect of the dishwasher could be reduced.
Syphon connection
The waste connection must be at a height less than 100 cm (maximum) from the bottom of the dish. The water
drain hose should be fixed.
Counter
Back of dishwasher
Drain hose
40 mm
Water Inlet
Drain Pipe
Power Cable

Related product manuals