EasyManua.ls Logo

Thomas 1300 ProTough - Page 91

Thomas 1300 ProTough
132 pages
Print Icon
To Next Page IconTo Next Page
To Next Page IconTo Next Page
To Previous Page IconTo Previous Page
To Previous Page IconTo Previous Page
Loading...
2-30
2
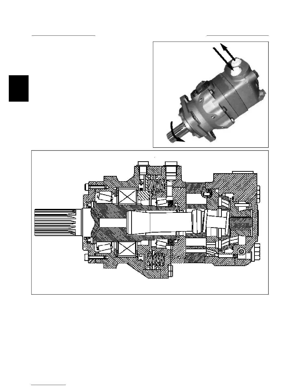
DRIVE MOTOR 2.12
For smooth and continuous motor output rotation, the
torque motor utilizes a disc valve which operates in syn-
chronization with the geroler star. The disc valve arrange-
ment consist of a stationary balance plate, rotating disc
valve and a stationary valve plate.
The disc valve contains an inlet fluid passage port for
each star valley and a return fluid passage point.
A separate crowned driveshaft is used to synchronize the
disc valve and the geroler star so that they turn as one. To
accept fluid from the disc valve, the valve plate also con-
tains internal porting passages to each outer ring pocket
area.
C1129
Fluid enters the housing through the inlet port and is
directed to the balance plate. The balance ring contains an
inner and outer seal to separate the high and low pressure
fluid passages. Fluid passes through the stationary bal-
ance plate to the rotating disc valve. The rotating disc
valve ports the fluid to the stationary valve plate and the
proper side of the geroler pockets causing the rotor star to
turn.
As the rotor star rotates, and each fluid pocket reaches its
full open position, the return porting in the rotating disc
valve opens to allow the fluid in the pocket are to pass
back through the valve plate, disc valve, balance plate
and out through the housing return port, as the pocket
closes.
The disc valve is timed to the geroler rotor star to govern
the the inlet fluid flow to the output shaft rotation.If the
timing of the disc valve to the geroler star is off one
tooth, the relationship of input fluid flow to output motor
shaft rotation will be reversed.
C1891

Table of Contents

Related product manuals