EasyManua.ls Logo

Thor Kitchen TKG4801 - Page 20

Thor Kitchen TKG4801
58 pages
Print Icon
To Next Page IconTo Next Page
To Next Page IconTo Next Page
To Previous Page IconTo Previous Page
To Previous Page IconTo Previous Page
Loading...
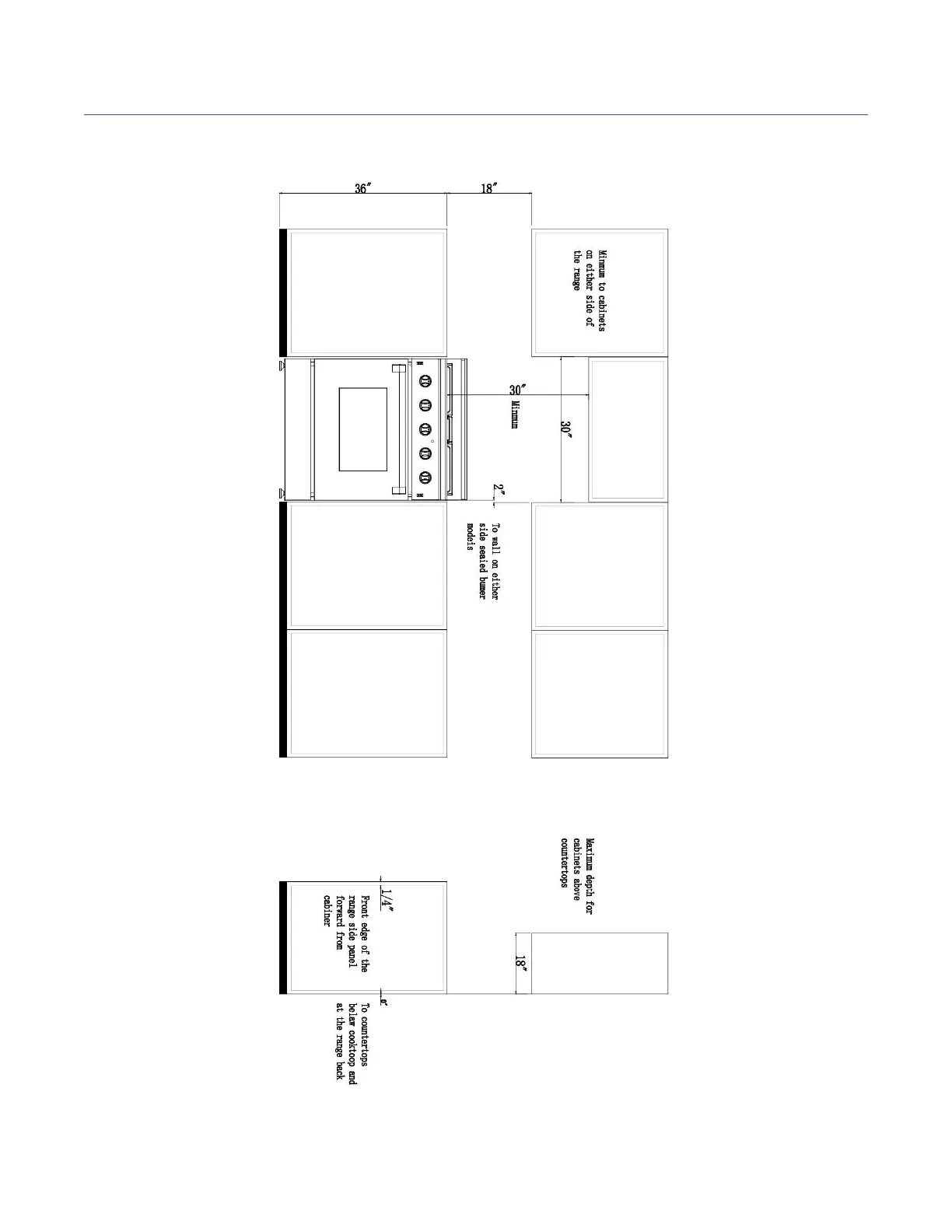
Dimension and Clearance
19
30” Gas Range Clearance

Table of Contents

Related product manuals