EasyManua.ls Logo

Tiger River Caspin - Page 17

Tiger River Caspin
52 pages
Print Icon
To Next Page IconTo Next Page
To Next Page IconTo Next Page
To Previous Page IconTo Previous Page
To Previous Page IconTo Previous Page
Loading...
Page 14
WARNING: FILL THE SPA WITH WATER BEFORE TURNING ON THE POWER! (See STARTUP AND REFILL PROCEDURES).
Once your spa has been filled with water, turn it on and test all of the circuit breakers.
NOTE: If both breakers immediately trip, verify that the #10 AWG WHITE neutral wire is connected from TB-1 terminal 7 to the N (load neutral)
terminal of the 30 amp subpanel breaker. Each breaker should be tested prior to each use. Here’s how:
1. Push the “TEST” button on each GFCI breaker, and observe it click OFF.
2. Wait 30 seconds, then push the breaker switch to the OFF (down) position (to ensure that it has completely disengaged), then push the
breaker switch to the ON (up) position. If you don't wait 30 seconds, the spa’s control panel may flash four lines on and off – try again.
If any of the GFCI breakers fails to operate in this manner, your spa may have an electrical malfunction, and you may be at risk of electrical
shock. Turn off all circuits and do not use the spa until the problem has been corrected by an authorized service agent.
WARNING: Removing or bypassing any GFCI breaker will result in an unsafe spa and will void the spa’s warranty.
IMPORTANT: Should you ever find the need to move or relocate your Tiger River
®
spa, it is essential that you understand and apply these
installation requirements. Your Tiger River spa has been carefully engineered to provide maximum safety against electric shock. Remember,
connecting the spa to an improperly wired circuit will negate many of its safety features.
Caspian
(Model CHP)
230 volt permanently connected model
NOTE: Long wiring runs may require larger-gauge wire than stated.
BENGAL
®
(MODEL MM) WIRING CONNECTIONS
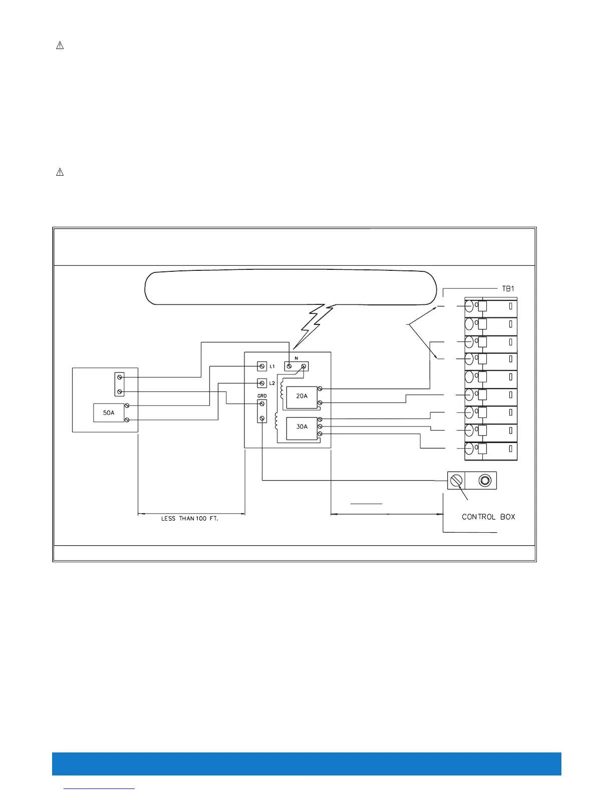
1. Identify the TB-1 terminal block, located inside the IQ 2020
®
control box at the lower left-hand corner.
2. Connect the #12 AWG, BLUE wire, from the subpanel 20 amp breaker, terminal L1 to TB-1, terminal 5.
3. Connect the #12 AWG, RED wire, from the subpanel 20 amp breaker, terminal L2 to TB-1, terminal 6.
4. Connect the #12 AWG, WHITE wire, from the subpanel 20 amp breaker, terminal N (load neutral) to TB-1, terminal 7.
NOTE: The WHITE neutral wire must be attached to the LOAD neutral on the 230-volt, 20-amp breaker (not to the neutral bus bar in the subpanel).
The WHITE neutral wire coming from the breaker itself is already connected to the neutral bus bar.
5. Connect the #10 AWG, BLUE wire, from the subpanel 30 amp breaker, terminal L1 to TB-1, terminal 2.
6. Connect the #10 AWG, RED wire, from the subpanel 30 amp breaker, terminal L2 to TB-1, terminal 4.
7. Connect the #10 AWG, GREEN wire, from the subpanel GROUND bar to TB-1, system ground terminal.
8. Using the pressure wire connector provided on the outside of the control box, bond the spa to all exposed metal equipment or fixtures,
Electrical Requirements
System Ground Terminal
GRD
WARNING!
THE EXACT PHYSICAL LOCATION OF THE TERMINALS ON THE GFCI BREAKER
WILL VARY BETWEEN MANUFACTURERS. CONNECTING THE HOT WIRE TO THE
NEUTRAL TERMINAL WILL CAUSE IRREVERSIBLE DAMAGE TO THE CONTROL BOX.
** Refer to NEC 250-122 (table)
*PROVIDED WITH HOT TUB.
IMPORTANT: ALL WIRING SHOULD BE COPPER.
NOTE: The wire connections to GFCI breakers are for reference only. Always ensure the white neutral wire is connected to the load neutral of the 30 amp breaker.
MAIN SERVICE
ELECTRICAL
PANEL
230V, 50 Amp,
2-POLE,
CIRCUIT BREAKER
(NON GFCI)
1
2
H1
3
4
5
FACTORY
WIRED
HEATER
L2 # 12 AWG RED
L1 # 12 AWG BLUE
L2 # 10 AWG RED
L1 # 10 AWG BLUE
N # 10 AWG WHITE
GROUND # 10 AWG GREEN
# 8 AWG WHITE, NEUTRAL
# 10 AWG GREEN, GROUND**
# 8 AWG BLUE, L1
# 8 AWG RED, L2
*SUBPANEL
WITH GFCI
BREAKERS
Minimum 5 FEET
The Subpanel must be
within sight of the spa
Do not exceed 50 FEET.
H2
6
7

Table of Contents

Related product manuals