EasyManua.ls Logo

Tiger River Caspin - 115 V Operation

Tiger River Caspin
52 pages
Print Icon
To Next Page IconTo Next Page
To Next Page IconTo Next Page
To Previous Page IconTo Previous Page
To Previous Page IconTo Previous Page
Loading...
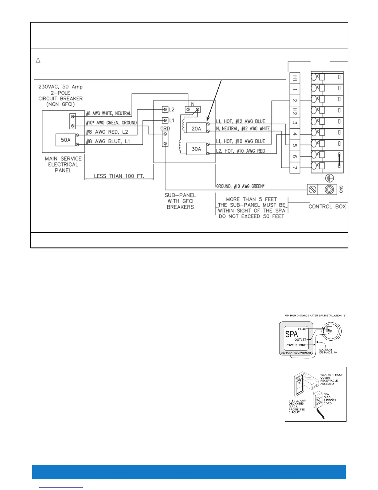
WARNING! The exact physical location of the terminals on the GFCI
breaker will vary between manufacturers. Connecting the hot wire to
the neutral terminal will cause irreversible damage to the control box.
*AVAILABLE FROM DEALER. NOTE: ALL WIRING SHOULD BE COPPER.
NOTE: The wire connections to GFCI breakers are for reference only. Always ensure the white neutral wire is connected to the load neutral of the 20 amp breaker.
** Refer to NEC 250-122 (table)
115 VOLT OPERATION
The spa must be connected to a dedicated 115 volt, 20 amp, GFCI protected, grounded circuit. The term “dedicated” means the electrical circuit
is not being used or shared for any other electrical items (patio lights, appliances, garage circuits, etc.). If the spa is connected to a non-dedicated
circuit, overloading will result in “nuisance tripping” at the main panel. This requires frequent resetting of the breaker switch at the house electrical
breakerpanelandintroducesthepossibilityofdamage,orfailureofspaequipment.Thededicatedcircuitmustbeproperlywired;thatis,itmust
have a 20-amp GFCI circuit breaker in the house breaker panel, #12 AWG or larger wire (including the ground wire) and the correct polarity
throughout the circuit.
NEVER CONNECT THE SPA TO AN EXTENSION CORD!
A pressure wire connector is provided on the exterior surface of the control box, inside the spa. This is to
permit the connection of a ground bonding wire between this point and any metal equipment, enclosures,
reinforced concrete pad, pipe, or conduit within 5 feet of the spa (if needed to comply with local building code
requirements). The bonding wire must be at least a #10-AWG solid copper wire.
Bond the spa to all exposed metal equipment or fixtures, handrails, and concrete pad per N.E.C. Article 680 and all
local codes.
INSTALLATION INSTRUCTIONS
Both 115 volt Tiger River
®
spa models come equipped with approximately 15 feet of useable power cord (this is the
maximum length allowed by Underwriters Laboratory and the National Electric Code). When the spa is installed, the
power cord will come out of the bottom of the equipment compartment door. For your safety, when the electrician is
installing the 20 amp single electrical outlet and waterproof cover, the outlet should be no closer than 5 feet and no
farther than 10 feet from the spa [reference National Electrical Code 680-6a(1) and 680-41a].
The Ground Fault Circuit Interrupter (GFCI) is located at the end of the power cord. This device is for your protection. It is very important to protect it
from rain and other moisture. Once a month, with the plug connected to the power supply,test the GFCI in the following manner:
1. Push the “TEST” button on the GFCI breaker. The spa should stop operating and the GFCI power indicator will go out.
2. Wait 30 seconds, then push the “RESET” button. Power will be restored to the spa and the GFCI power indicator will turn on.
Bengal
®
(Model M) and Sumatran
®
(Model N)
230 volt converted models
Page 17
Electrical Requirements

Table of Contents

Related product manuals