EasyManua.ls Logo

Tokheim Quantium 110 - Q210 Dispenser; Q210 Dispenser Dimensions

Tokheim Quantium 110
80 pages
Print Icon
To Next Page IconTo Next Page
To Next Page IconTo Next Page
To Previous Page IconTo Previous Page
To Previous Page IconTo Previous Page
Loading...
Quantium 110 & 210 Installation Manual Drawings
Document Ref 947571-001 Rev 2 Page 3-5
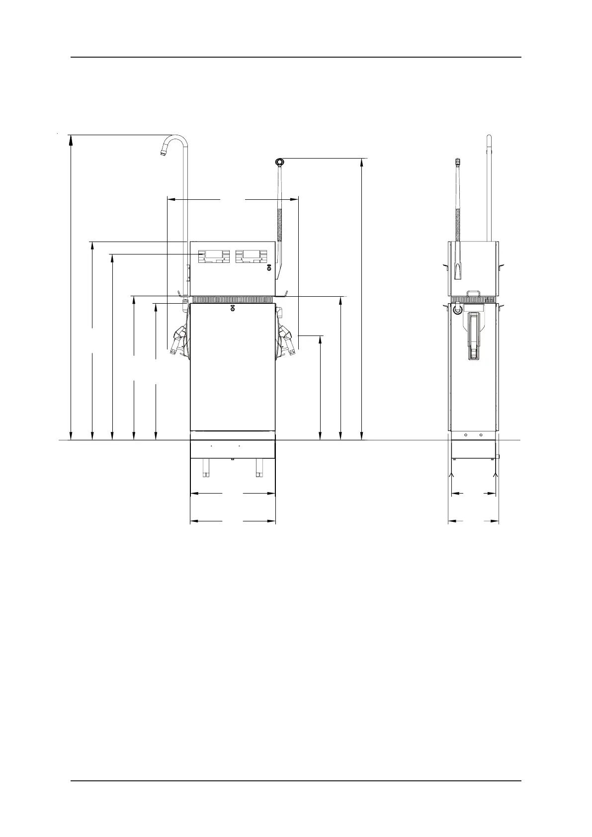
3.2 Q210 Dispenser
3.2.1 Q210 DISPENSER DIMENSIONS
427
350670
673
2410
1137
1032
825
1133
2223
NOTES:-
Side A is the side where the pulleys are (if TQP config).
When facin
g
Side A the pump pulle
y
is on the ri
g
ht hand side
(
if PASV3 confi
g)
When facin
g
Side A, filter brackets are on the ri
g
ht hand side
(
if submer
g
ed confi
g)
For option "Display one side only" displays are on side A
Product outlet always on side 2 for single product
Outlet elbows are oriented upwards for sprin
g
mast and oriented downwards for hose hook
For retainin
g
hose option, the standard one is with the hook otherwise other options are either
spring or rigid mast.
Side A
(Base)
(Cladding)
Rigid mast
Product 1
Display
Spring mast
Side B
(Cladding)
(Base)
Nozzle
Product 2
Hose Hook
Side A
Island level
1570
1082
1439

Table of Contents

Related product manuals