EasyManua.ls Logo

Toro 30612 - Wiring Diagram

Toro 30612
36 pages
Print Icon
To Next Page IconTo Next Page
To Next Page IconTo Next Page
To Previous Page IconTo Previous Page
To Previous Page IconTo Previous Page
Loading...
32
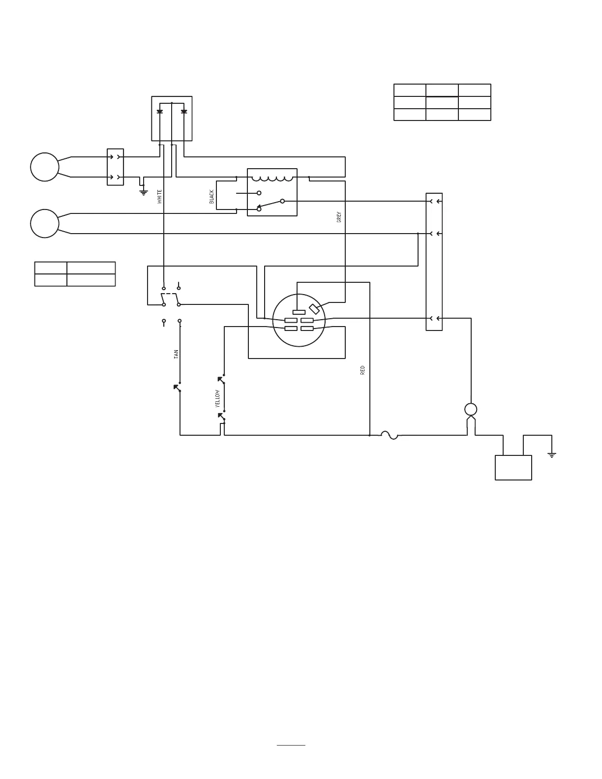
Wiring Diagram
X+Y
B+S+I
START
RUN
A+B+I
IGNITION SWITCH CIRCUITRY
OFF
OPEN
c–pl120
CLUTCH
N
N
C
HOUR
ME-
TER
X
Y
AB
S
I
KEY
SWITCH
PTO
SWITCH
20 A
FUSE
SEAT
PARKING BRAKE
NEUTRAL
STARTER
+
_
RED
REDRED
BLU
E
BLUE
BLUE
VIOLET
WHITE
GREY
GREEN
ORANGE
BROWN
BLACK BLACK
BLACK
DIODE MODULE
RELAY
A
BC
D
ON
OFF
A + B
C + D
CLOSED WHEN TRACTION
PEDAL IS IN NEUTRAL
OPEN WHEN OPERATOR IS NOT IN SEAT
CLOSED WHEN PARKING
BRAKE IN OFF POSITION
CONNEC-
TOR
ENGINE CONNECTOR
BLACK
RED
TO MAGNETO
TO REGULA-
TOR
TO STARTER
PTO SWITCH CIRCUITRY
C
O

Table of Contents

Related product manuals