EasyManua.ls Logo

Toshiba RAS-13YAH-E - Page 16

Toshiba RAS-13YAH-E
67 pages
Print Icon
To Next Page IconTo Next Page
To Next Page IconTo Next Page
To Previous Page IconTo Previous Page
To Previous Page IconTo Previous Page
Loading...
16
RAS-13YKH-ES / RAS-13YAH-ES
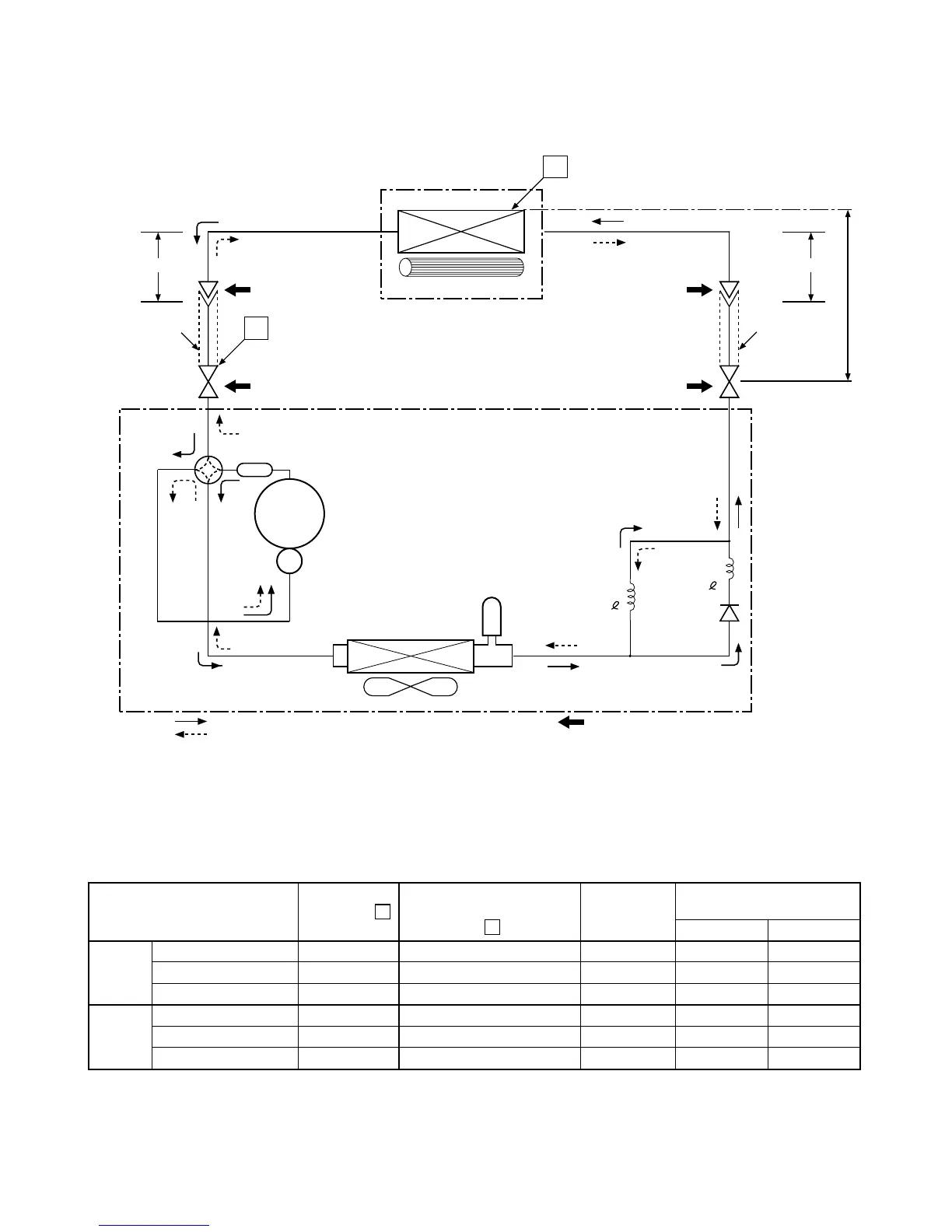
Note : Measure the heat exchanger temperature at the center of U-bend. (By means of TC sensor.)
*
1 : During heating overload, the high temperature limit control operation is included.
Heat exchanger
Indoor unit
Cross flow fan
Cooling
Heating
4-way valve
Heating
Cooling
Compressor
Condenser
Propeller fan
Outdoor unit
Dryer
Capillary tube
ø1,5x500
PA160X2T-4FM
Cooling
Heating
Mark( )means check points of Gas Leak
O.D.:9,52mm O.D.:6,35mm
Cooling
Gas container connection (Reinstall etc.)
Packed valve
(ø9,52)
Packed valve
(ø6,35)
(Note)
Maximum pipe length is 15m
Maximum pipe head is 6m
0,49m
(Connecting pipe)
ø9,52
0,39m
(Connecting pipe)
ø6,35
T
P
Refrigerant
R-410A 0,80kg
Capillary tube
ø1,2x1200
Muffler
Ambient temp.
conditions DB/WB (°C)
50Hz
Standard
pressure
P
(MPaG)
Surface temp. of heat
exchanger interchanging
pipe
T
(°C)
Fan speed
(indoor)
Indoor Outdoor
Standard 2,7 43,0 High 20/ - 7/6
High temperature
*
13,23,6 52,057,0 Low 27/ - 21/15Heating
Low temperature 2,0 30,0 High 20/ - -10/-10
Standard 0,9 11,0 High 27/19 35/24
High temperature 1,0 14,0 High 32/23 43/26Cooling
Low temperature 0,6 2,0 Low 21/15 21/15

Table of Contents

Related product manuals