EasyManua.ls Logo

Toshiba RBM-A101VAE - Instalação

Toshiba RBM-A101VAE
52 pages
To Next Page IconTo Next Page
To Next Page IconTo Next Page
To Previous Page IconTo Previous Page
To Previous Page IconTo Previous Page
Loading...
–42–
PT
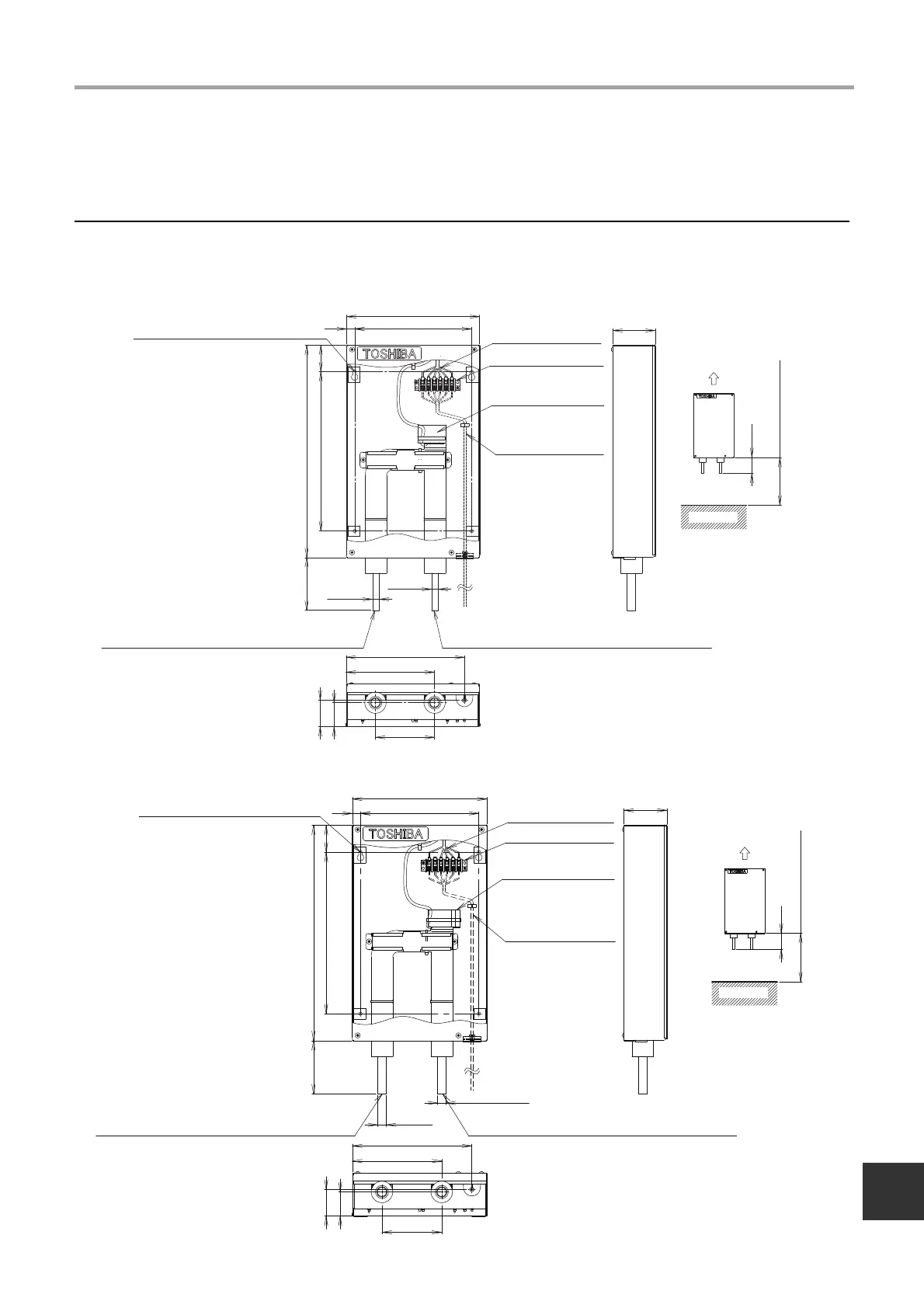
4. Instalação
Dimensões externas e espaço de instalação
Certifique-se de que instala o controlador, kit de válvula no interior. Se assim não for, pode causar a formação de gelo,
ferrugem ou avaria.
(Unidade: mm)
400
250
100
220
300 50
15
80
100
45
50
222
166
111
RBM-A101VAE
4-Ø 6,0 Orifício de montagem
Cabo de ligação
(Cablagem de fábrica)
Bloco de terminais (6p)
Motor PMV
Cabo de ligação
(Cablagem local)
Porta de ligação do tubo de refrigerante
(Tubo de líquido/Lado da unidade exterior)
Porta de ligação do tubo de refrigerante
(Tubo de líquido/Lado da unidade de tratamento de ar)
Nota)
Este produto destina-se a instalação interior.
Lado superior
300 ou mais
Solo
Ø12,7
Ø12,7
400
250
100
220
300 50
15
80
45
50
111
166
222
100
RBM-A201VAE
Nota)
Este produto destina-se a instalação interior.
4-Ø 6,0 Orifício de montagem
Cabo de ligação
(Cablagem de fábrica)
Bloco de terminais (6p)
Motor PMV
Cabo de ligação
(Cablagem local)
Porta de ligação do tubo de refrigerante
(Tubo de líquido/Lado da unidade exterior)
Porta de ligação do tubo de refrigerante
(Tubo de líquido/Lado da unidade de tratamento de ar)
Lado superior
300 ou mais
Solo
Ø15,88
Ø15,88
6-PT

Related product manuals