EasyManua.ls Logo

Toto UT447E - Rough-in Dimensions; Urinal Mounting and Plumbing Dimensions

Toto UT447E
6 pages
Print Icon
To Next Page IconTo Next Page
To Next Page IconTo Next Page
To Previous Page IconTo Previous Page
To Previous Page IconTo Previous Page
Loading...
3
ENGLISH
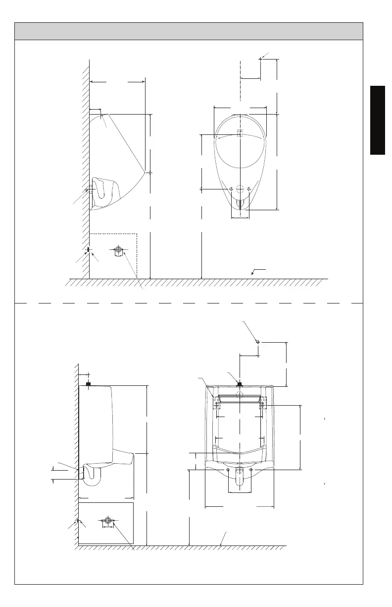
ROUGH-IN DIMENSIONS
2-1/2" (61mm)
12-1/4"
(310mm)
17" (ADA)
(432mm)
24"
(610mm)
3/4"
(19mm)
Spud
Outlet
F inish ed
F inish ed F loor
W all
2"
(51mm)
I.P.
Inside
Th reads
G ask et
4-1/4"
(108mm)
Outlet Detail
14"
(356mm)
C/L
3/4" (19mm) I.P.S. Supply for
flush ometer V avlve
21-1/4"
(540mm)
11-1/2"
(292mm)
10-3/8"
(264mm)
12-1/4"
(310mm)
4-3/4"
(121mm)
4-1/4"
(108mm)
19-1/4"
(490mm)
12-1/4" (ADA)
(311mm)
Outlet Flange
2”
(51mm)
OUTLE T
F IN ISH E D
W ALL
I.P.
Inside
Th reads
G ask et
6"
(152mm)
Outlet Detail
Outlet F lang e
2-3/8" (61mm)
17-1/2" (445mm)
3/4" (19mm)
12" (305mm)
4 3/4" (121mm)
11 1/2" (292mm)
12 5/8" (320mm)
16 3/4" (424mm)
17 3/4" (451mm)
6" (152mm)
19 5/8" (500mm)
OR
** 12 5/8” (321mm)
F IN ISH E D F LOOR
4 3/8" (110mm)
3/4" (19mm) I.P.S SUPPLY
F OR F LUSH OM E TE R V ALV E
2-1/2" (63.5mm)
14-1/4" (362mm)
24" (610mm)
OR
**17” (432mm)
H AN G E R
SPUD

Related product manuals