EasyManua.ls Logo

Trane 4TWR5 - Page 12

Trane 4TWR5
16 pages
Print Icon
To Next Page IconTo Next Page
To Next Page IconTo Next Page
To Previous Page IconTo Previous Page
To Previous Page IconTo Previous Page
Loading...
12 22-1832-13
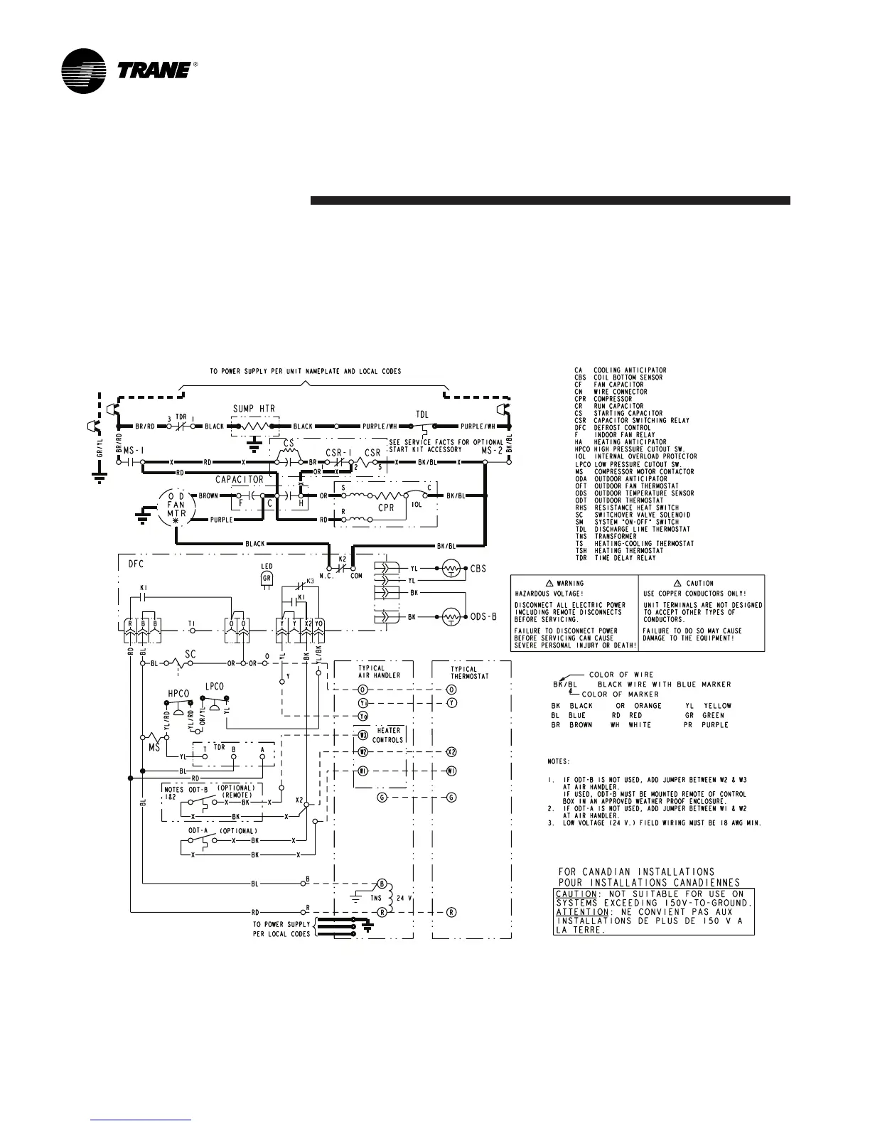
Electrical
Data
Schematic Diagrams
(SEELEGEND)
PrintedfromD156131P04
4TWR5042

Related product manuals