EasyManua.ls Logo

Trane 4TXCB004DS3HCC - Outline Drawing

Trane 4TXCB004DS3HCC
10 pages
Print Icon
To Next Page IconTo Next Page
To Next Page IconTo Next Page
To Previous Page IconTo Previous Page
To Previous Page IconTo Previous Page
Loading...
18-AD42D1-1B-EN 7
Installer’s Guide
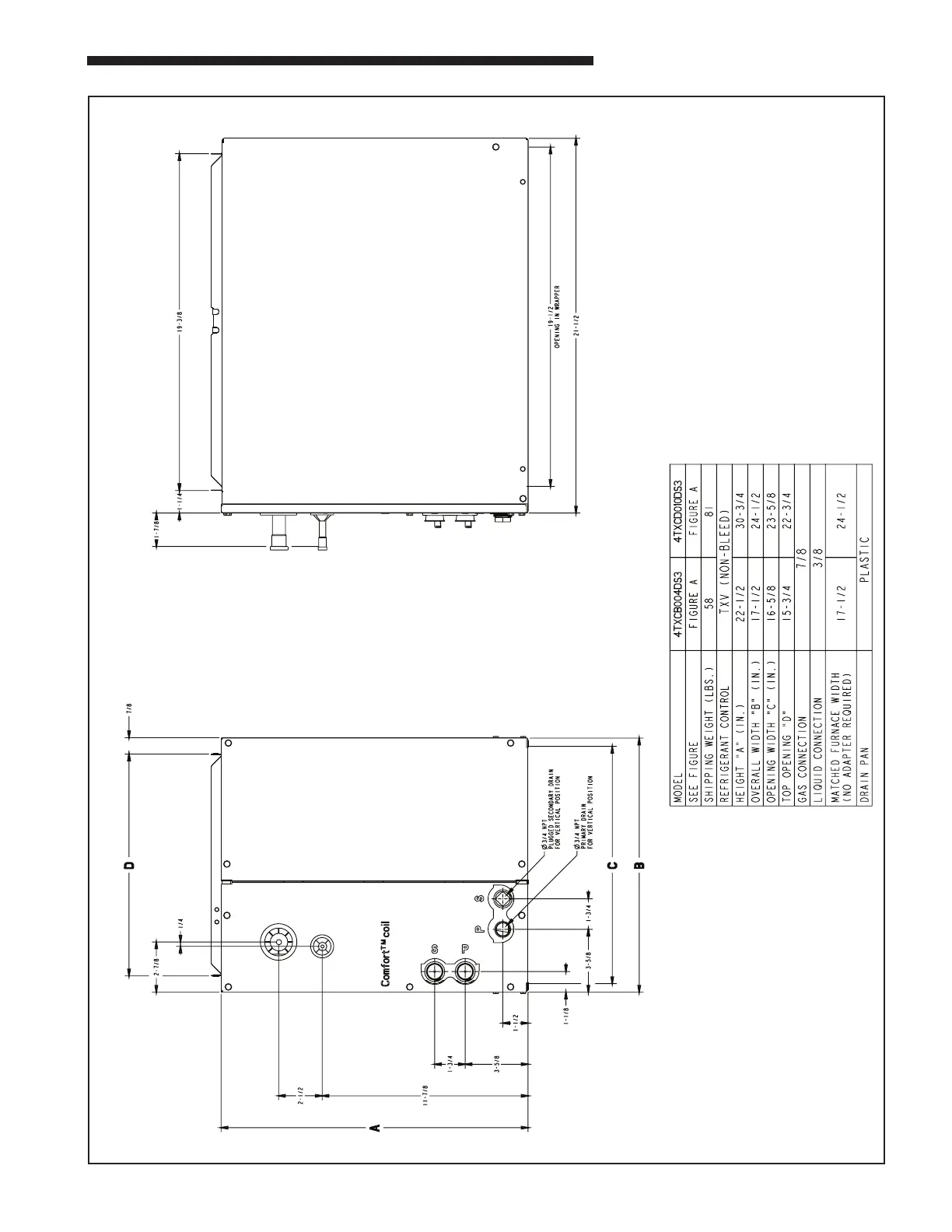
Outline Drawing for model: 4TXCB004DS3HCC, 4TXCD010DS3HCC
From Dwg. D346710 Rev. A

Related product manuals