EasyManua.ls Logo

Trane 4TXCC007DS3HCB - 04-29-2022 Trane HVAC Evaporator Coil Installation Guide 6

Trane 4TXCC007DS3HCB
12 pages
Print Icon
To Next Page IconTo Next Page
To Next Page IconTo Next Page
To Previous Page IconTo Previous Page
To Previous Page IconTo Previous Page
Loading...
....
OJ
j:.
8
<0
0
....
I
....
1"
m
z
,
--.J
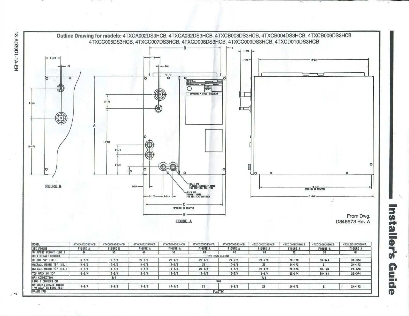
Outline Drawing
for
models:
4TXCA002DS3HCB
,
4TXCA032DS3HCB,
4TXCB003DS3HCB
,
4TXCB004DS3HCB,
4TXCB006DS3HC
B
4TXCC005DS3HCB,
4TXCC007DS3HCB
,
4TXCD008DS3HCB,
4TXCC009DS3HCB,
4TXCD010DS3HCB
·~
I
-
1·1/t
1-
r
...
...,.
_
lt-S/1
1..
.J
0 0
F
1
•1
11
1·111
~
A
11
·
111
I
D
[
11·1/1
8
0
0 0
0 0 0
EIGLBE
B
Hit
~
1
J.I.N"II:CGIWI
lUll
11·111
J
FOI
ftiT
I~L
10111101
OPEIIM
IIIWf[l
11
·
11
1
c
OP[IIM IIIIUI'ft:l
B
From Dwg.
EJ~U~~;
A
0346673
Rev A
IIODEL
4TXCAD02DS3HCB I 41XCB003DS3HCB I 4TXCAD320S3HCB I 4TXCB0040S3HCB I 4TXCC:0050S3HCB 4TXCB0060S3HCB I 4TXCC0070S3HCB I 4TXCD0080S3HCB I 4TXCC0090S3HCB I 4
TXCD0100S3HCB
SEE
FIGURE FIGURE
A
FIGURE
8
FIGURE
A
FIGURE
A
ne
uu
A
FIGURE
A
FI
GURE
A
FIGURE
A
FIGURE
A
FI
GURE
A
SHIPP!
II&
lElGHT
ILBS.
J
44
50
41
51
10
u
..
12
11
II
IEFRIGERAIT
COITIOl
TXV
(NON-BLEED)
HEIGHT
'A'
Ill.
l
17-511
11-5/1
22-112
22·1/Z 22-1/2
21-711
U -
71
1 U-711 30-3/4 30-3/4
OVERALL
IIDTH
'8
'
III.J
14-1/2
11-1/Z
14-
1/2 1
7-1
/ Z
21
11-1/2
21
24-1/2
21
24-1/2
OVERALL
II
DTH
'C'
Ill.
J
13-5/1 11-5/1
ll-511
11·511
2D-I/I
11-518
Z0-
1
II
U·511
20-111
21-511
Tot'
OI'EIING
'0'
12-S/4
15
-3/4
12-314
15·3/4 11-1/4 15-3
/4
l
t-1/4
22·3/4
lt-1
/4
22-3/4
GAS
COIIECTI
ON
3/4
Til
LIOUID
CONNECTIOII
3/1
MATCHED
FU
RMACE
I I
DTH
14-1/7
11-l/2
i4
-l/
2
11-1/2
21
17-1/2
21
24-1/Z
21
24-112
IHO
ADAPTER
REOUIREDJ
DRAIN
PAN
PLASTIC
'
'
-
-
:I
en
..
m
-
-
CD
..
...
I
1:)
c
a.
CD

Related product manuals