EasyManua.ls Logo

Trane 4YCY4060A - Page 19

Trane 4YCY4060A
29 pages
Print Icon
To Next Page IconTo Next Page
To Next Page IconTo Next Page
To Previous Page IconTo Previous Page
To Previous Page IconTo Previous Page
Loading...
19
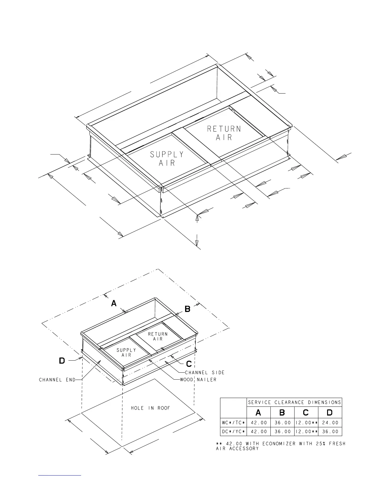
Optional Equipment
BAYCURB051A Full Perimeter Roof Mounting Curb for *****042-060A
56 1/8
15 7/8
3
10 7/8
19 1/2
4 3/4
19 1/2
14
41 7/8
20
1 1/2
38 7/8
53 1/8
The drawings on this page are prepared by the
manufacturer in order to provide detail regarding
job layout only. These drawings are not intended to
be used as a basis to construct, build or modify the
items depicted in the drawings. The manufacturer is
not responsible for the unauthorized use of these
drawings and expressly disclaims any liability for
damages resulting from such unauthorized use.

Related product manuals