EasyManua.ls Logo

Trane CenTraVac CDHG - Page 11

Trane CenTraVac CDHG
36 pages
Print Icon
To Next Page IconTo Next Page
To Next Page IconTo Next Page
To Previous Page IconTo Previous Page
To Previous Page IconTo Previous Page
Loading...
CVHE-SVN04M-EN
11
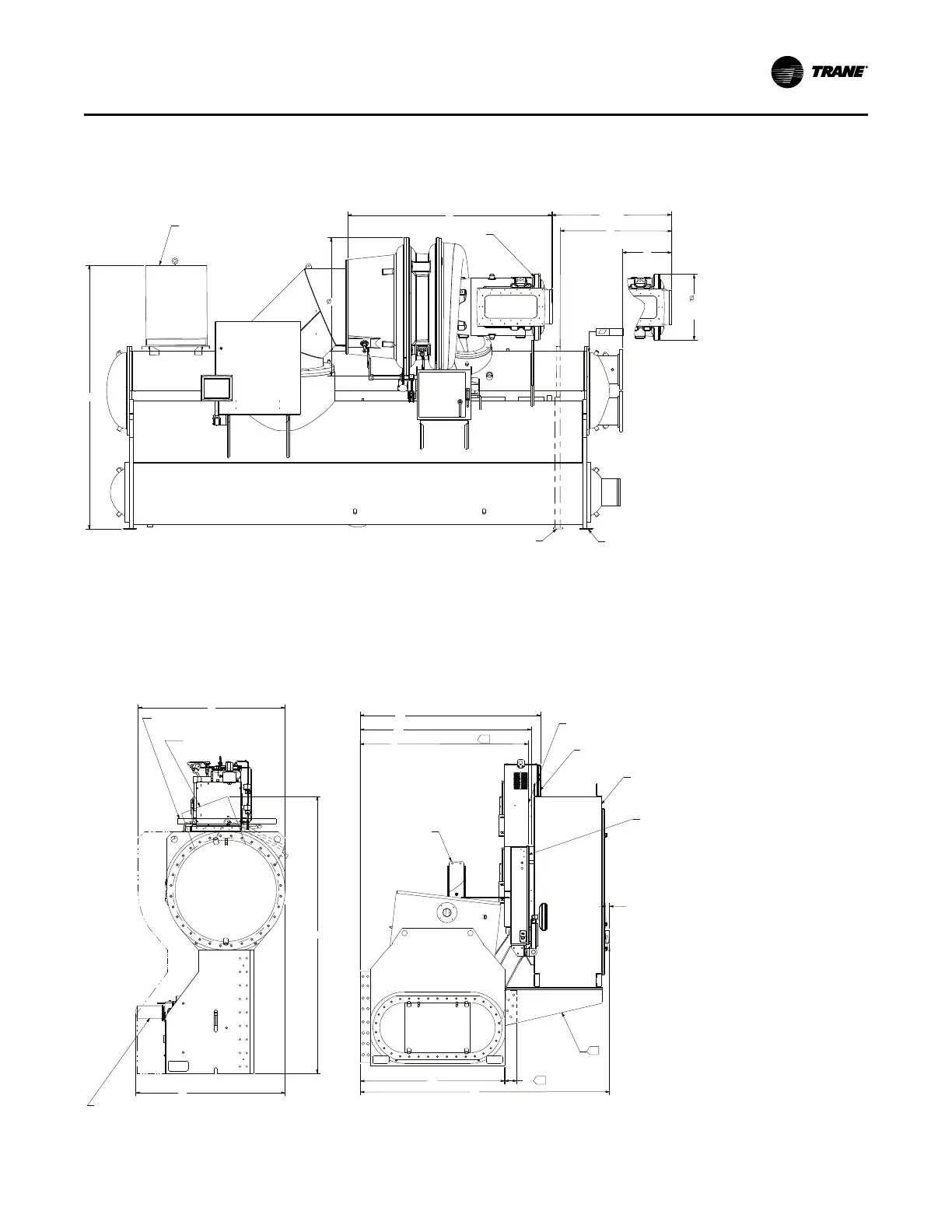
See Table 1, p. 6 through for dimensional data for the
following figure.
Figure 2. Assembly for CVHE, CVHF, and CVHG CenTraVac chillers (CVHF-080 shown)
T
MAX OD
LARGEST
MO
TOR
E
F
C
S
R
MOTOR
REMOVAL SPACE
OPTIONAL
UATR OR UPIR
REDUCED VOLTAGE
ENCLOSURE
DIMENSIONS: 40.0 W X 26.2 D X 27.0 H
WEIGHT: 1200 LBS MAX
MAIN UNIT
CONTROL PANEL
COMPRESSOR
MOTOR
LARGEST MOTOR
OPTIONAL
CPTR
SHORT SHELL
LONG SHELL
.100
CVHF-080 UNIT SHOWN (COOLING ONLY)
NNootteess::
1. All dimensions are in inches (±0.5 inch). See Table 1, p. 6 through Table 5, p. 13 for dimension tables.
2. UAFD brackets and supports shown are bolt-on and removable. Most brackets and supports on 405–608A
UAFD are welded on and non-removable. See Table 5, p. 13 for application dimensions.
3. Applies only to CVHE 190–320 NTON on 032 shells with free-cooling option.
4. Add 1.5 inch for distance to Tracer Adaptiview
display mounting arm in stowed position.
2
2
M
W
M
AC
Y2
AD
Y2
Y2
L
1.6 405-608A UAFD
1.0 900-1210A UAFD
2.5 339A & 539-677A UAFD
OPTIONAL USID OR USTR
SEE UNIT SUBMITTALS FOR DIMENSIONS
OIL FILTER
USID, USTR, OR UACD
MAIN UNIT CONTROL PANEL
SUPPORTS FOR OPTIONAL UNIT MOUNTED UATR
OR UPIR REDUCED VOLTAGE ENCLOSURE
(ENCLOSURE NOT SHOWN)
WHEN CONDENSER IS WIDEST
OPTIONAL FRCL CONNECTION
PURGE
WHEN OIL TANK IS WIDEST
CONDENSER
UAFD
MOTOR SUPPORT
OPTIONAL UATR, UPIR, UXL OR SMP
SEE UNIT SUBMITTALS FOR DIMENSIONS
MAIN UNIT CONTROL PANEL
OPTIONAL UAFD
SEE UNIT SUBMITTALS FOR DIMENSIONS
UAFD DISCONNECT SWITCH TO
ENCLOSURE DOOR LATCHES
UATR, UPIR, UXL OR SMP
EVAPORATOR
5
DDiimmeennssiioonnss aanndd WWeeiigghhttss

Related product manuals