EasyManua.ls Logo

Trane CenTraVac CDHG - Page 10

Trane CenTraVac CDHG
36 pages
Print Icon
To Next Page IconTo Next Page
To Next Page IconTo Next Page
To Previous Page IconTo Previous Page
To Previous Page IconTo Previous Page
Loading...
10
CVHE-SVN04M-EN
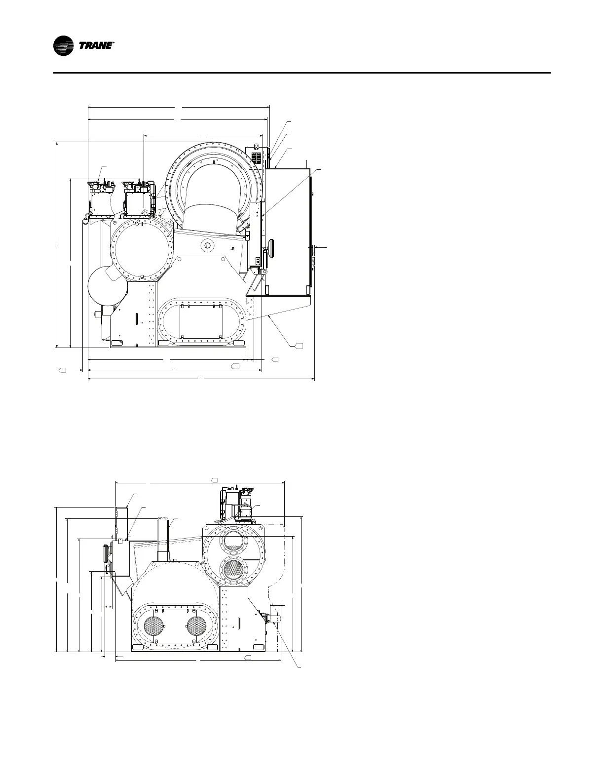
Figure 1. Assembly for CVHE, CVHF, and CVHG CenTraVac chillers
H
V
G
Y1
Y1
Y3
AB
U
1.6 405–608A UAFD
1.0 900–1210A UAFD
2.5 318A & 530–636A UAFD
Y1
AD
1.00
USID, USTR, OR UACD
4
PURGE
CVHE
320
FRCL
2
UATR, UPIR, UXL OR SMP
COMPRESSOR MAX WIDTH
ECONOMIZER
CONDENSER
COMPRESSOR
MOTOR TERMINAL BOX (NOT SHOWN)
PURGE
OPTIONAL USID O
R USTR
SEE UNIT SUBMITTALS FOR DIMENSIONS
OPTIONAL UATR, UPIR, UXL OR SMP
SEE UNIT SUBMITTALS FOR DIMENSIONS
MAIN UNIT CONTROL PANEL
OPTIONAL UAFD
SEE UNIT SUBMITTALS FOR DIMENSIONS
2
UAFD DISCONNECT SWITCH TO
ENCLOSURE DOOR LATCHES
MAIN UN
IT CONTROL PANEL
5
UAFD
EVAPO
RATOR
SEE NOTE 4
NNootteess::
1. All dimensions are in inches (±0.5 inch). See Table 1, p. 6 through Table 5, p. 13 for dimension tables.
2. UAFD brackets and supports shown are bolt-on and removable. Most brackets and supports on 405–608A
UAFD are welded on and non-removable. See Table 5, p. 13 for applicable dimensions.
3. Applies only to CVHE 190–320 NTON on 032 shells with free-cooling option.
4. Add 1.5 inch for distance to Tracer AdaptiView
display mounting arm in stowed position.
P
N
SMALLEST
MOTOR
J
Z
AA
X
1.3
3.0
A
5.7
A
B
K
OIL FILTER
WHEN CONDENSER IS WIDEST
MAIN CONTROL PANEL
OPTIONAL CPTR
CPTR
LIFTING
LUG
WHEN OIL TANK IS WIDEST
5
MOTOR
SUPPORT
EVAPORATOR
CONDENSER
PURGE
5
CVHF-080 UNIT SHOWN (COOLING ONLY) WITH COMPRESSOR AND ECONOMIZER REMOVED
DDiimmeennssiioonnss aanndd WWeeiigghhttss

Related product manuals