EasyManua.ls Logo

Trane CVGF-SVN02B-E4 - Page 39

Trane CVGF-SVN02B-E4
68 pages
Print Icon
To Next Page IconTo Next Page
To Next Page IconTo Next Page
To Previous Page IconTo Previous Page
To Previous Page IconTo Previous Page
Loading...
CVGF-SVN02B-E4
39
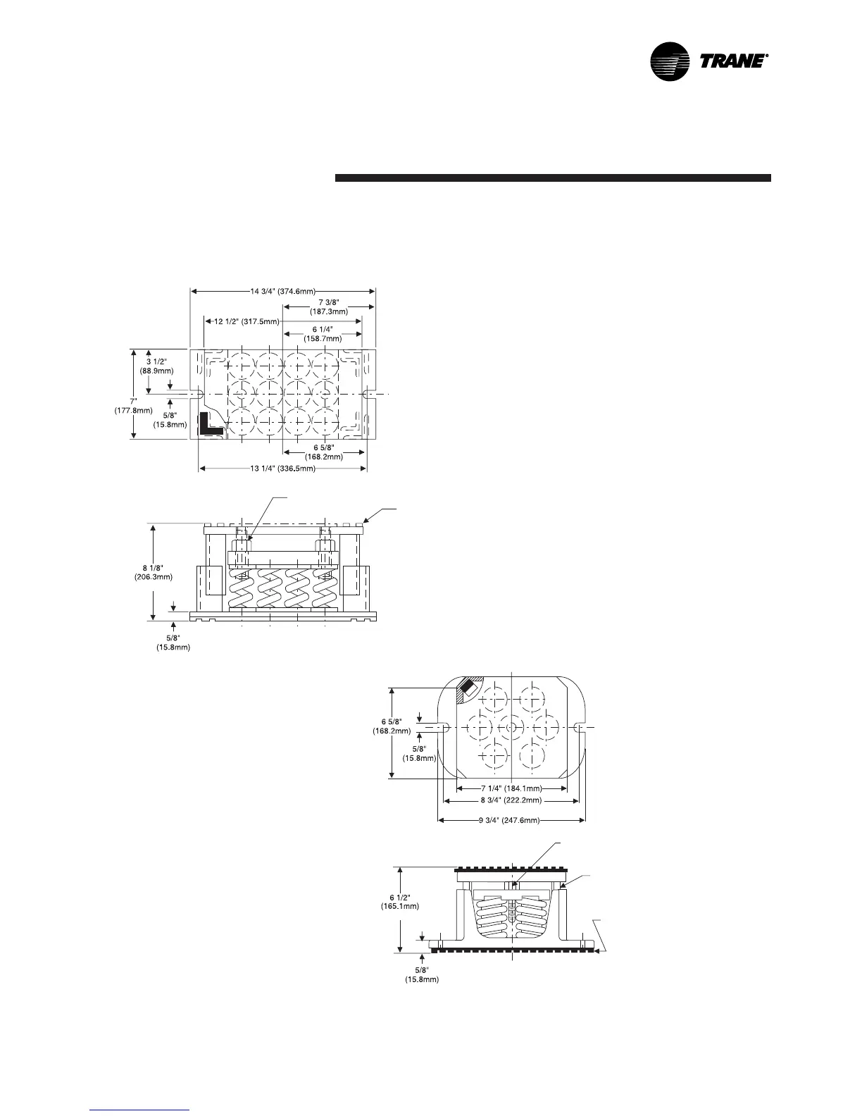
Installation:
Mechanical
CT-12 Spring Isolators
Free Height
1/4"
(6.3mm)
Acoustical
nonskid
neoprene
pad (top
and
bottom)
(2) 1-B UNC Adjusting
and Leveling Bolts
Figure 8. Typical spring isolator construction
CT-7 Spring Isolators
C-C Foundation Bolts
Free Height
Adjust isolator so that the upper
housing clears the lower housing by at
least 1/4
" (6.3mm) and not more than 1/2"
(12.7mm)
1/4" (6.3mm) Acoustical nonskid
neoprene pad (top and bottom)
3/4" (19.0mm)
10 UNC Adjusting and leveling bolt

Related product manuals