EasyManua.ls Logo

Trane RAUJ-C25 - Page 31

Trane RAUJ-C25
132 pages
Print Icon
To Next Page IconTo Next Page
To Next Page IconTo Next Page
To Previous Page IconTo Previous Page
To Previous Page IconTo Previous Page
Loading...
SS-SVX11K-EN
31
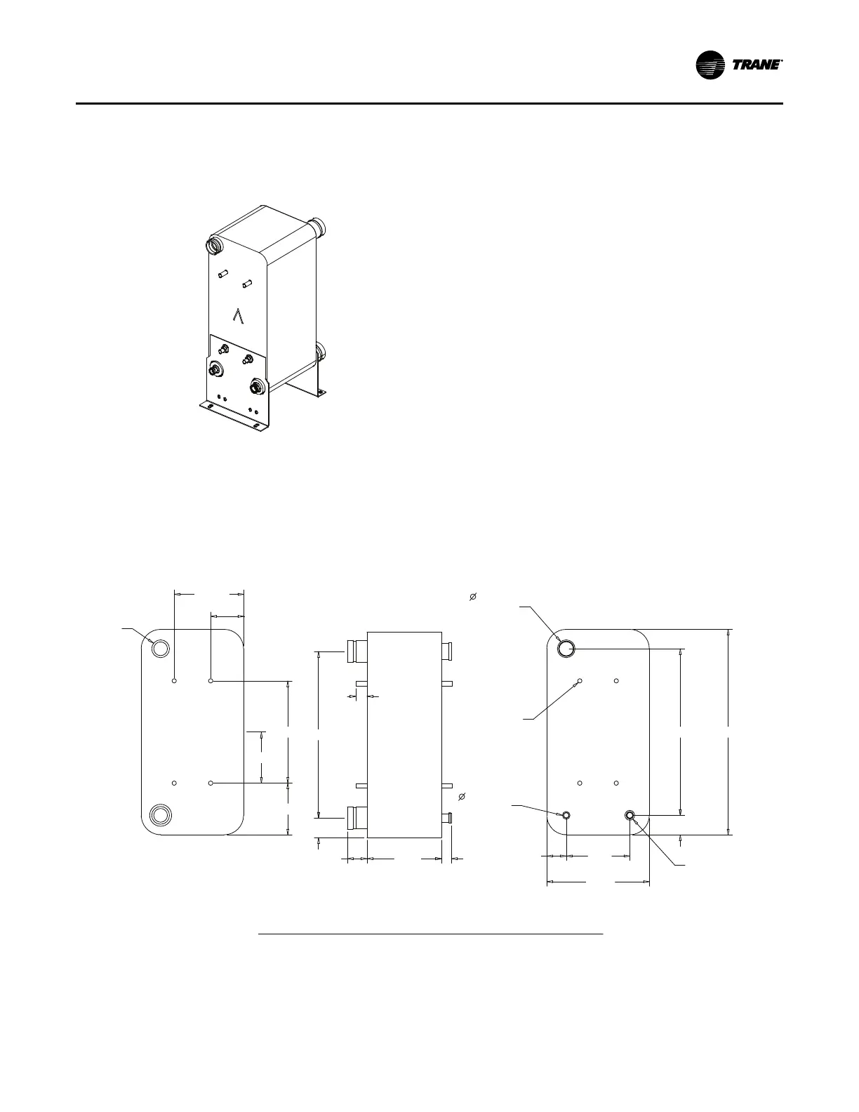
Figure 20. Evaporator chiller 25 ton
)
1 3/8"
20 11/16"17 15/16"
6 7/8"
9 9/16"
1 3/8"
1 1/16"6 1/2"2 1/8"
17 15/16"
1 3/8"
1 3/16"
11"
5 1/2"
4 13/16"
3 15/16"
2 13/16"
25 TON BRAZED PLATE HEAT EXCHANGER
ACCESSORY DRAWING
WITH INSULATION
F1
F3
NOTES:
1. THIS HEAT EXCHANGER IS INTENDED FOR INDOOR INSTALLATION ONLY
2. HEAT EXCHANGER MOUNTING LEGS ARE INSTALLED AT JOB SITE WITH
SUPPLIED FASTENERS
3. INSULATIONSHOULD BE INSTALLED AFTER INSTALLING
LEGS & REFRIGERANT TUBING, OR MUST BE ADEQUATELY SHIELDED AGAINST
HEAT WHEN BRAZING REFRIGERANT LINES
4. INSTALL INSULATION SIDE PIECES FIRST THEN WRAPPER MAY REQUIRE
TRIMMING
5. USE VINYL TAPE (FIELD SUPPLIED) TO SEAL INSULATION AFTER INSTALLATION
6. WATER CONNECTIONS ARE GROOVED (VICTAULIC)
7. REFRIGERANT CONNECTIONS ARE STAINLESS STEEL AND REQUIRE SPECIAL
BRAZE MATERIALS. SEE IOM BRAZE PROCEDURE.
8. 1/2" - 14 NPT F4 CONNECTION SUPPLIED ON EXT'S 05 THRU 08 AND 13
THRU 16 ONLY.
BRAZED PLATE HEAT EXCHANGER REMOTE CHILLER EVAPORATOR OPTION
OPTION INCLUDES:
1 - BRAZED PLATE HEAT EXCHANGER - SHIPS SEPARATE FROM RAUJ CONDENSING
UNIT
1 - INSTALLATION KIT, TO INCLUDE:
2 - MOUNTING BRACKETS
1 - INSULATION KIT
1 - MOUNTING BRACKET & INSULATION KIT INSTALLATION INSTRUCTIONS
1 - WATER CONNECTION KIT WITH PIPING STUBS, Y CONNECTOR, STRAINER,
VICTAULIC CONNECTIONS WITH GASKETS,
WATER FLOW SWITCH
1 - WATER CONNECTION KIT INSTALLATION INSTRUCTIONS
INSTALLATION ADDITIONALLY REQUIRES:
RAUJ REMOTE EVP CONTROL PANEL WITH LEAVING WATER TEMPERATURE
SENSOR, FREEZE-STAT, AND INSTALLATION INSTRUCTIONS - ALL INCLUDED WITH
REMOTE EVP CONTROL PANEL
4 - FIELD PROVIDED 7/16" BOLTS FOR SECURING BRAZED PLATE HEAT
EXCHANGER TO PERMANENT MOUNTING SURFACE
2 - FIELD PROVIDED 1/2" - 14 NPTE PLUGS, STAINLESS STEEL OR PVC
FIELD PROVIDED TEFLON TAPE FOR SEALING 1/2" PIPE PLUGS
FIELD PROVIDED WATER STRAINER PLUG OR BLOW DOWN VALVE
FIELD PROVIDED TEE FOR INSTALLING WATER FLOW SWITCH
FIELD PROVIDED 2" VINYL TAPE FOR SEALING INSULATION SEAMS
SEE IOM FOR INSTALLATION DETAIL
SEE NOTE 8
F4
P2
P4
5/16" ODF
7/8" DEPTH
5/8" ODF
3/8" DEPTH
8 x M12 x 1/2"
2 x 2 3/8" VICTAULIC
(P2 & P4)
DDiimmeennssiioonnss aanndd WWeeiigghhttss

Table of Contents

Related product manuals