EasyManua.ls Logo

Trane RAUJ-C25 - Page 79

Trane RAUJ-C25
132 pages
Print Icon
To Next Page IconTo Next Page
To Next Page IconTo Next Page
To Previous Page IconTo Previous Page
To Previous Page IconTo Previous Page
Loading...
SS-SVX11K-EN
79
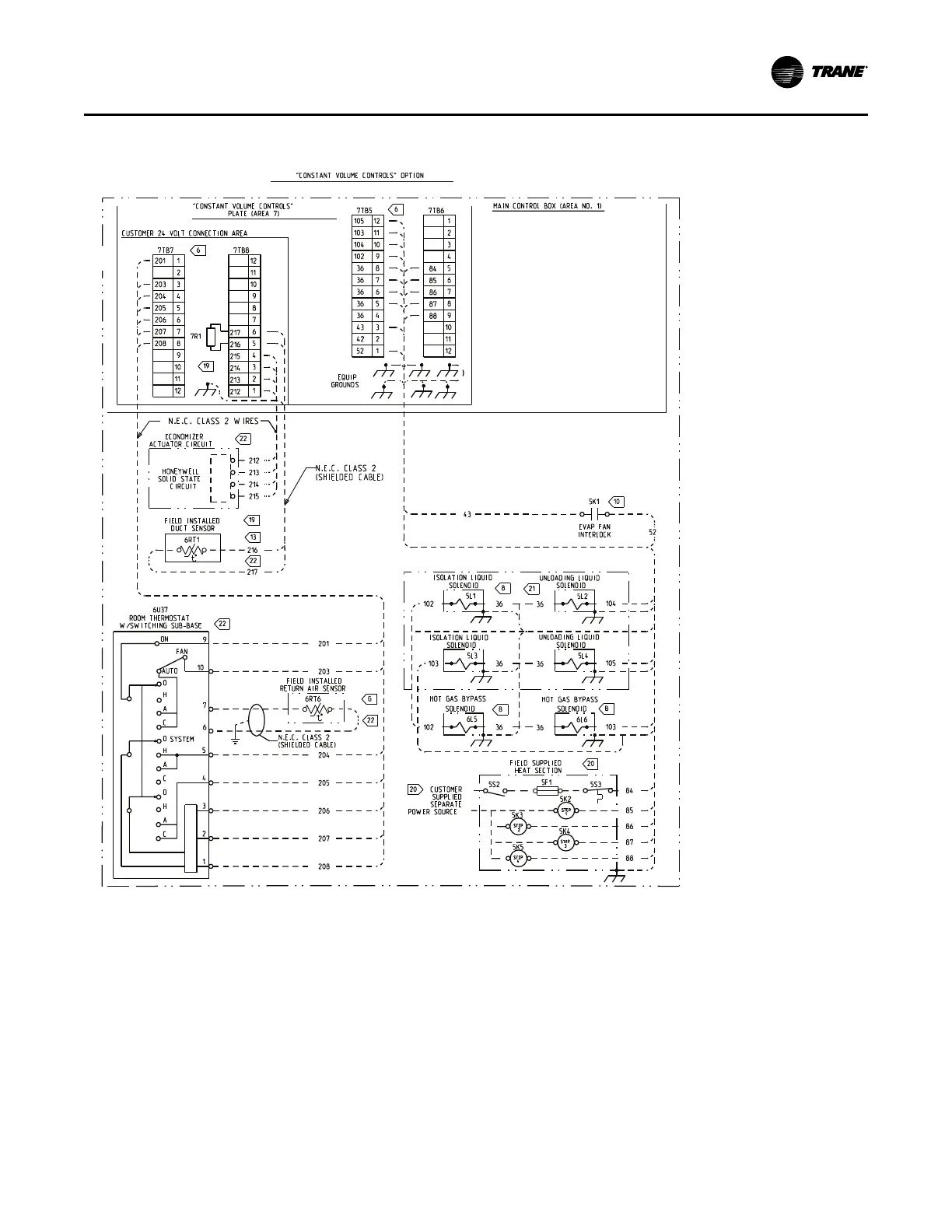
Figure 53. Field connection diagram, RAUJ 20 to 60 tons constant volume control applications
2307-9122
NNoottee:: See wiring notes on Figure 47, p. 72.
Electronic Zone Thermostat (Honeywell
T7067)
Each unit ordered with constant volume controls (in the
model number) is shipped with a Honeywell T7067
electronic zone thermostat. A Honeywell switching
subbase (Q667) is also included. The switching
subbase allows the operator to select the “System
Mode” of operation, i.e., Cool, Heat, Auto, or Off and
the “Fan Mode” of operation, i.e., On or Auto.
NNoottee:: As long as the status of the system is in an
occupied mode, the supply fan will operate
continuously. The fan will only cycle in the
“Auto” mode during unoccupied periods.
The zone thermostat should be located in an area with
good air circulation to enhance zone temperature
averaging. Position the thermostat about 54" above the
floor in a frequently occupied area.
Do not mount the thermostat where its sensing
element may be affected by:
Drafts or “dead” spots behind doors or in corners;
IInnssttaallllaattiioonn EElleeccttrriiccaall

Table of Contents

Related product manuals