EasyManua.ls Logo

Trane RT-PRC010-EN - Page 12

Trane RT-PRC010-EN
104 pages
Print Icon
To Next Page IconTo Next Page
To Next Page IconTo Next Page
To Previous Page IconTo Previous Page
To Previous Page IconTo Previous Page
Loading...
RT-PRC010-EN12
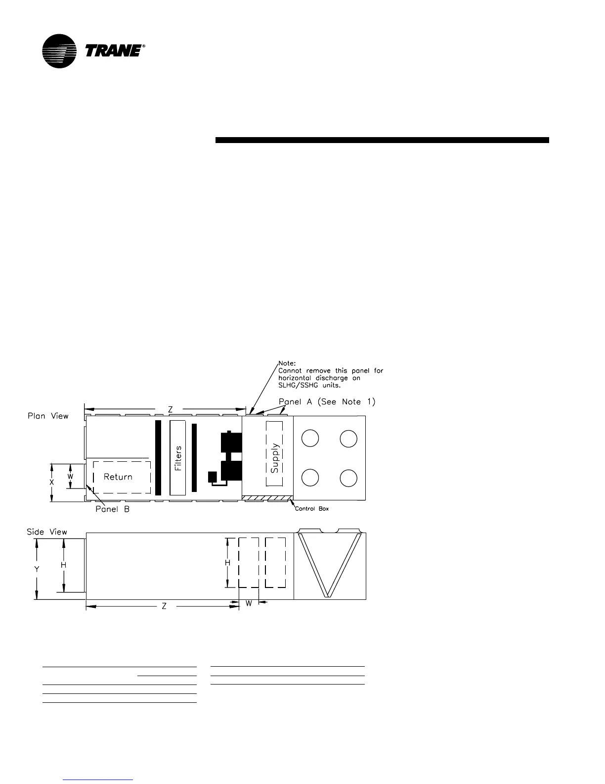
Figure AC-3 is a simplified sketch
showing which panels can be used for
horizontal supply and/or return. On 90 to
130 ton units, only one side of the
extended casing may be used for
horizontal supply because of the
location of the unit control panel. There
are, however, on SXHF models two
panels (Panels A) on the side opposite
the control box which can be removed
along with the vertical support which
separates the two. Removal of the
vertical support is optional, but will
ensure maximum airflow. On SLHG,
SSHG models only one of the Panel As
may be used for horizontal supply
because of the location of the heating
coil. Horizontal return is accomplished in
much the same way as on S*HFs by
removing the exhaust fan access door
(Panel B). See Tables AC-4 and 5 for
S*HG panel dimensions.
When using an IntelliPak® Rooftop for
horizontal supply and return, an
additional pressure drop must be added
to the supply external static to account
for the 90 degree turn the air is making.
This additional pressure drop depends
on airflow and rooftop size, but a range
of 0.10 inches to 0.30 inches can be
expected. The openings on the rooftop
all have a one inch lip around the
perimeter to facilitate ductwork
attachment. If exhaust fans are being
used on an IntelliPak Rooftop unit with
horizontal return, provisions should be
made for access to the exhaust
components, since the access door
opening is now being used as a return.
Perhaps the return ductwork attachment
to the rooftop can include a section of
removable duct. Use the dimensions
provided and the supply and exhaust
CFM to calculate the velocity (ft/min)
through the openings.
Horizontal Discharge SXHG, SLHG,
SSHG Rooftops (90 to 130 tons)
The SXHG, SLHG, SSHG rooftops can be
field modified to supply and return air
horizontally without the use of a
horizontal supply/return curb.
To supply air horizontally, use Panel A
only. The Panel on the opposite side
cannot be used due to the location of the
unit control Panel. SXHG rooftop air
conditioners do not have a panel
configuration like the 20 to 75 ton
rooftops. To achieve maximum airflow,
vertical support can be removed after the
unit has been placed on the roof curb. It
is secured by four screws. (See Note 1)
For horizontal discharge on SLHG and
SSHG units, only the Panel A next to the
condenser fan section can be removed.
The other Panel A next to the supply fan
cannot be used due to the location of the
heating coils.
To return air horizontally, the exhaust fan
access door (Panel B) can be removed
and used as a return opening.
Table AC-4 SXHG, SLHG, SSHG
Panel A and B Dimensions
Total Area (H X W)
Panel H (in.) W (in.) (in.
2
) (ft
2
)
A 72.7 27.5 1999 13.9
B 72.7 34.5 2508 17.4
Notes:
1. Add an extra 0.20-inches pressure drop to the
supply external static to account for the extra turn
the air is making.
2. The openings all have a 1.25-inch lip around the
perimeter to facilitate ductwork attachment.
Table AC-5 SXHG, SLHG, SSHG
X, Y and Z Dimensions
Model X (in.) Y (in.) Z (in.)
S*HG 90-130 69.0 77.8 244.7
* = X, L, or S
Note:
1. SXHG units have two Panel As that can be removed. Once unit is installed, panel(s) and the 6
1
/2 vertical
support channel in between may be removed.
3. If exhaust fans are being used, provisions should
be made for access to the exhaust components,
since the access door is now being used as a
return.
4. Use the dimensions provided and the supply Cfm
to calculate the velocity (ft/min) through the
openings to be sure they are acceptable.
Figure AC-3 Horizontal Discharge Panel Dimensions 90 - 130 Tonss SXHG, SLHG, SSHG Units
Application
Considerations

Related product manuals