EasyManua.ls Logo

Trane RT-PRC010-EN - Dimensional Data; Dimension and Weights

Trane RT-PRC010-EN
104 pages
Print Icon
To Next Page IconTo Next Page
To Next Page IconTo Next Page
To Previous Page IconTo Previous Page
To Previous Page IconTo Previous Page
Loading...
RT-PRC010-EN86
Dimensional
Data
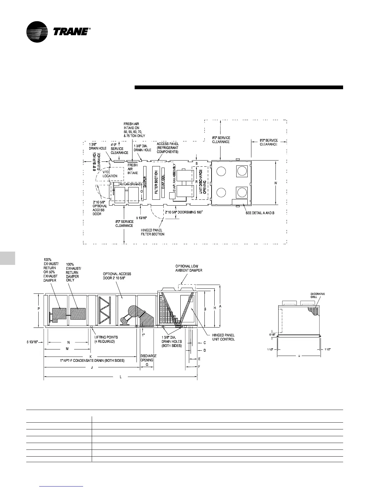
Figure DD-1 — 20-75 Ton Cooling Only Unit Dimensions — SAHF
Table DD-1 — Cooling Only Unit Dimensions (Ft. In.) — SAHF
Nominal
Tons H L W A B C D E F G J K M N P Q R S U
20 & 25 5-8
15
/
16
21-9
3
/
4
7-6
1
/
2
6-4
3
/
16
5-3
1
/
8
0-9
1
/
2
1-3
5
/
8
1-7
9
/
16
1-3
1
/
2
2-2
1
/
2
14-0
1
/
4
12-6 7-0 6-6
15
/
16
3-9
5
/
16
3-4
3
/
8
5-7 0-11
3
/
4
7-9
1
/
2
30 6-2
7
/
16
21-9
3
/
4
7-6
1
/
2
6-9
11
/
16
5-8
5
/
8
0-9
1
/
2
1-3
5
/
8
1-7
9
/
16
1-3
1
/
2
2-2
1
/
2
14-0
1
/
4
12-6 7-0 6-6
15
/
16
4-9
5
/
16
3-4
3
/
8
5-7 0-11
3
/
4
7-9
1
/
2
40 6-7
3
/
8
27-0 7-6
1
/
2
7-2
5
/
8
6-1
5
/
8
0-9
7
/
8
1-5
7
/
8
1-10
1
/
8
2-5 2-5 16-7
13
/
16
15-11
1
/
8
8-0 7-8
3
/
16
5-9
5
/
16
3-4
3
/
8
5-7 0-11
3
/
4
7-9
1
/
2
50 & 55 5-8
7
/
8
29-8 7-6
1
/
2
6-4
1
/
8
5-3
1
/
8
0-9
1
/
2
1-3
5
/
8
1-7
9
/
16
2-5 2-5 16-7
13
/
16
15-11
1
/
8
8-0 7-8
3
/
16
6-9
3
/
8
3-4
3
/
8
5-7 0-11
3
/
4
7-9
1
/
2
60 6-7
3
/
8
27-0 9-8 7-2
5
/
8
6-1
5
/
8
0-9
7
/
8
1-5
7
/
8
1-10
1
/
8
2-5 2-5 16-7
13
/
16
15-11
1
/
8
8-0 7-8
3
/
16
5-9
5
/
16
4-5
3
/
8
6-10
7
/
8
1-4
9
/
16
9-11
70 & 75 6-7
3
/
8
27-0 9-8 7-2
5
/
8
6-1
5
/
8
0-9
7
/
8
1-5
7
/
8
1-10
1
/
8
1-4 2-5 16-7
13
/
16
15-11
1
/
8
8-0 7-8
3
/
16
5-9
5
/
16
4-5
3
/
8
6-10
7
/
8
1-4
9
/
16
9-11
(20 - 75 Tons)

Related product manuals