EasyManua.ls Logo

Trane RT-PRC010-EN - Variable Air Volume Vav

Trane RT-PRC010-EN
104 pages
Print Icon
To Next Page IconTo Next Page
To Next Page IconTo Next Page
To Previous Page IconTo Previous Page
To Previous Page IconTo Previous Page
Loading...
RT-PRC010-EN92
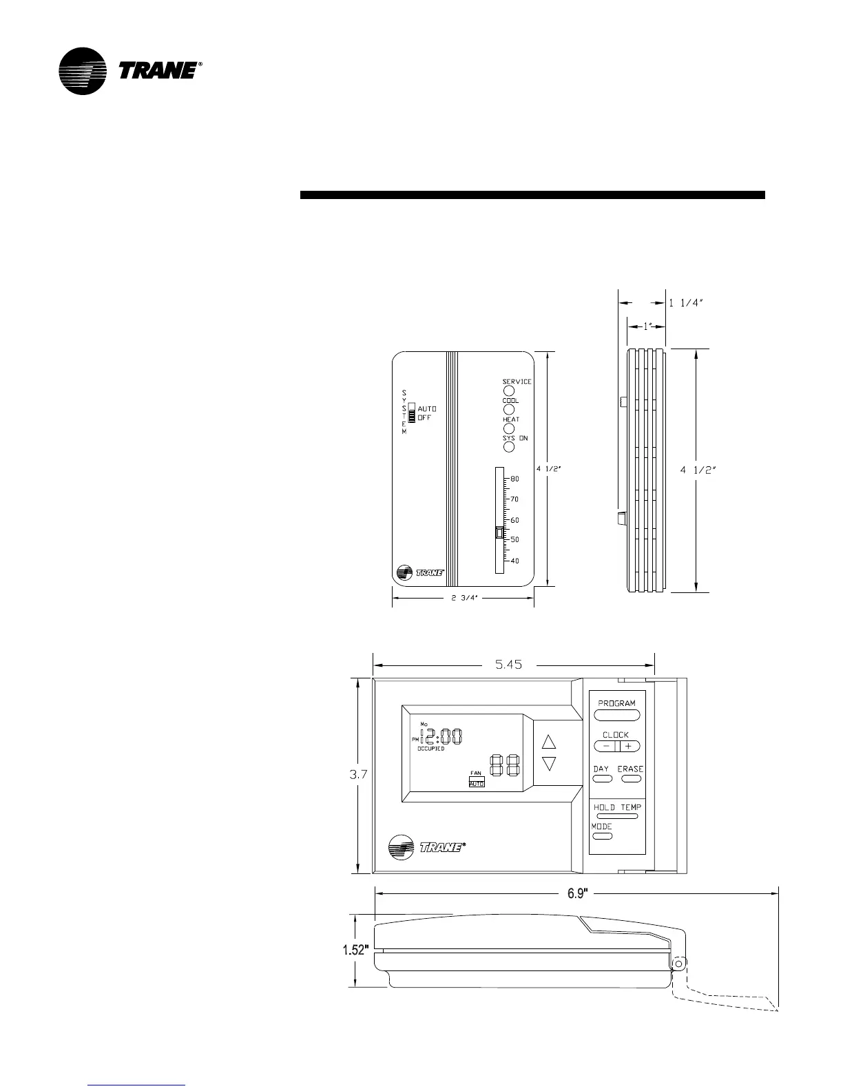
Note:
1. Remote sensors are available for use with all zone sensors to provide remote sensing capabilities.
SINGLE SETPOINT SENSOR WITH SYSTEM FUNCTION LIGHTS (BAYSENS021*)
PROGRAMMABLE NIGHT-SETBACK SENSOR (BAYSENS020*)
Dimensional
Data
Field Installed Sensors
(Variable Air
Volume VAV)

Related product manuals