EasyManua.ls Logo

Trane RT-PRC010-EN - Page 91

Trane RT-PRC010-EN
104 pages
Print Icon
To Next Page IconTo Next Page
To Next Page IconTo Next Page
To Previous Page IconTo Previous Page
To Previous Page IconTo Previous Page
Loading...
91RT-PRC010-EN
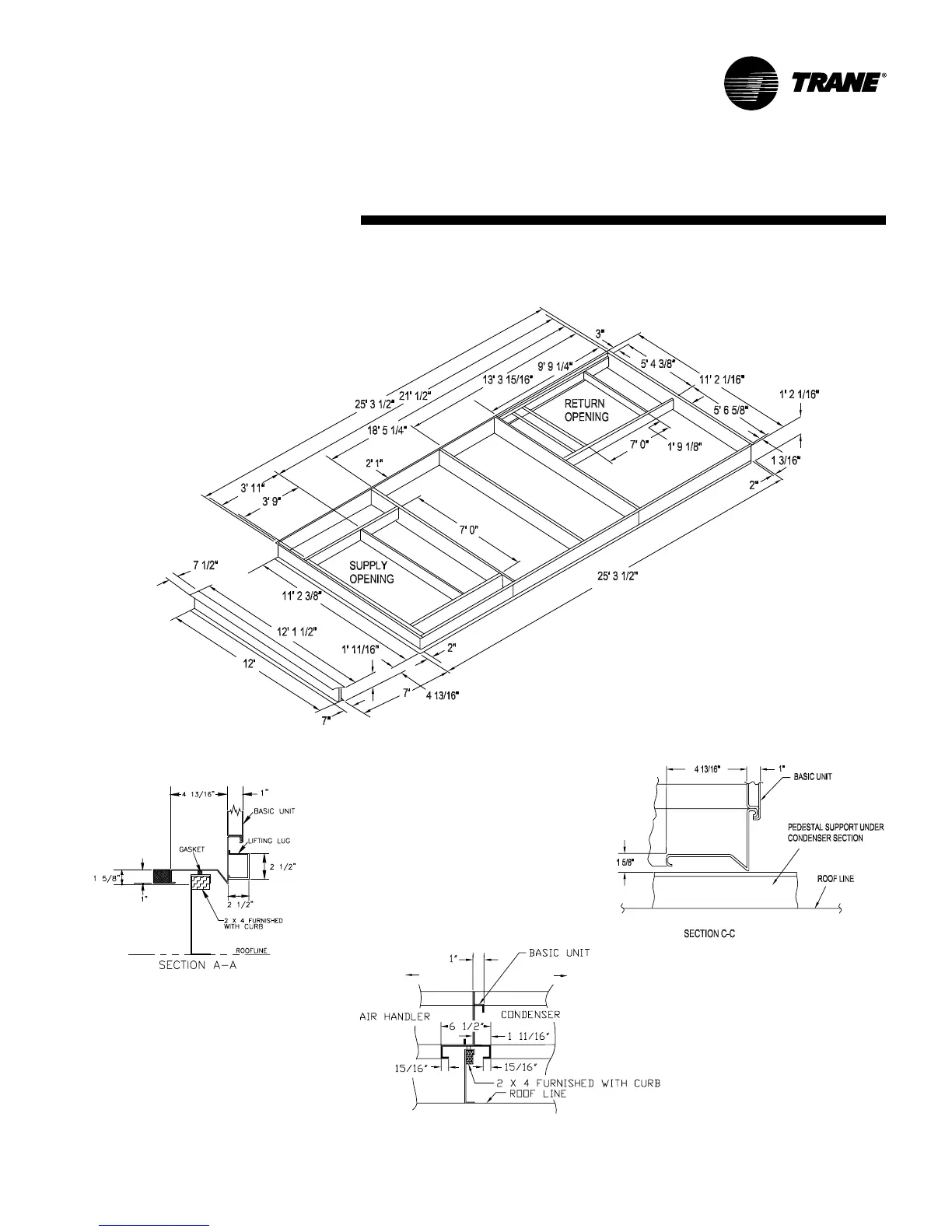
Figure DD-6 90 - 130 Ton Roof Curb Dimensions
Cross Section Thru
Roof Curb and base pan
Dimensional
Data
(90 - 130 Tons)
SECTION B-B

Related product manuals