EasyManua.ls Logo

Trane RTAA-400 - Page 29

Trane RTAA-400
140 pages
Print Icon
To Next Page IconTo Next Page
To Next Page IconTo Next Page
To Previous Page IconTo Previous Page
To Previous Page IconTo Previous Page
Loading...
29
RTAA-IOM-3
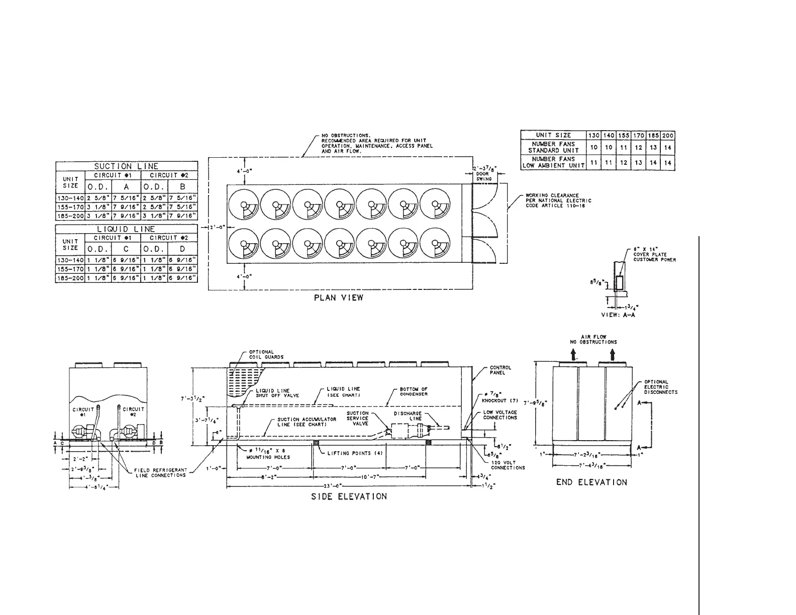
Figure 12
Dimensions and Clearances for
RTAA Outdoor Unit with Remote Evaporator Option
RTAA-SU-1003A

Table of Contents

Related product manuals