EasyManua.ls Logo

Trane RTAA-400 - Page 91

Trane RTAA-400
140 pages
Print Icon
To Next Page IconTo Next Page
To Next Page IconTo Next Page
To Previous Page IconTo Previous Page
To Previous Page IconTo Previous Page
Loading...
91
RTAA-IOM-3
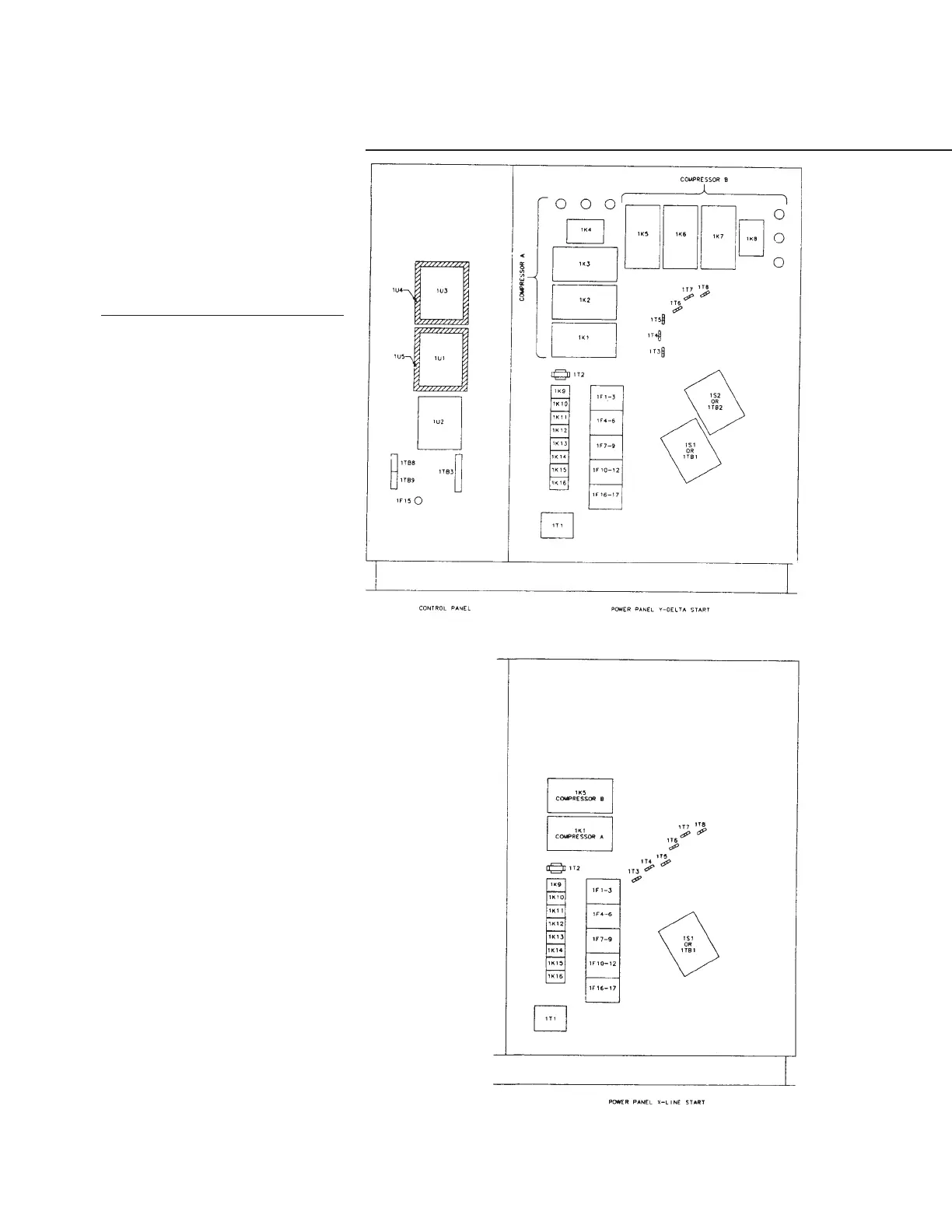
Figure 50
RTAA Control Panel –
130 to 200 Tons
with Remote Evaporator Option
LEGEND:
Device
Designation Description
1F1-6 Fan Fuses, Circuit 1
1F7-12 Fan Fuses, Circuit 2
1F15 Control Circuit Fuse
1F16, 1F17 Primary Transformer
Fuses
1K1, 1K5 Start Contactors
1K2, 1K6 Run Contactors
1K4, 1K8 Transition Contactors
1K5, 1K7 Shorting Contactors
1K9-12 Fan Contactors, Circuit 1
1K13-16 Fan Contactors, Circuit 2
1S1, 1S2 Non-fused Disconnect
Switch
1T1 Control Power
Transformer
1T2 Under/Over Voltage
Transformer
1T3-5 Compressor Current
Transformer, Circuit 1
1T6-8 Compressor Current
Transformer, Circuit 2
1TB1, 1TB2 Line Voltage Terminal
Blocks
1TB3 Terminal Strip, 115 V
1TB8, 1TB9 Terminal Strip, 24 V
1U1 Chiller Module
1U2 Options Module
1U3 Expansion Valve Module
1U4 Compressor Protection
Module, Compressor A
1U5 Compressor Protection
Module, Compressor B

Table of Contents

Related product manuals