EasyManua.ls Logo

Trane RTHD - Page 24

Trane RTHD
32 pages
Print Icon
To Next Page IconTo Next Page
To Next Page IconTo Next Page
To Previous Page IconTo Previous Page
To Previous Page IconTo Previous Page
Loading...
RLC-PRC020-EN24
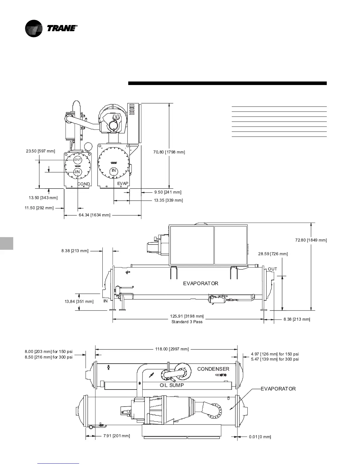
Dimensions and
Weights
BCD Configuration
Recommended Clearances
Front 36" (914 mm)
Back 36" (914 mm)
Either End 36" (914 mm)
Other End* 126" (3200 mm)
Top 36" (914 mm)
* Clearance for tube removal
Note:
1. Dimensions are based on 3 Pass Evap / 2 Pass
Cond and LH/LH water connections. Refer to
submittals for exact configuration.
2. Refer to the Nominal Capacity Data table in the
General Data section for capacity ranges of each
compressor.

Other manuals for Trane RTHD

Related product manuals