EasyManua.ls Logo

Trane S8X1B060M3PSAB - Fault Code Recovery

Trane S8X1B060M3PSAB
64 pages
To Next Page IconTo Next Page
To Next Page IconTo Next Page
To Previous Page IconTo Previous Page
To Previous Page IconTo Previous Page
Loading...
18-CE04D1-1D-EN
59
Fault Code Recovery
Fault Code Recovery
1. To view the last 6 faults, press the “Menu” key until the “Last 6
Faults” (L6F) menu appears.
2. Enter the menu by pressing the “Option” key.
3. The last 6 faults can be viewed.
Clearing the Last 6 Faults
1. To clear the last 6 faults, press the “Menu” key until the “Last 6
Faults” (L6F) menu appears.
2. Enter the menu by pressing the “Option” key.
3. Hold the “Option” key for at least 5 seconds.
4. Release and a set of 3 dashes with be seen 3 times. This confirms
the faults have been cleared.
Resetting Factory Defaults
1. Display must be in Idle Mode.
2. Push the “Menu” and “Option” buttons at the same time for 15
seconds then release.
3. The 7 segment will flash FD 3 times. This confirms the unit has
been reset to the factory defaults.
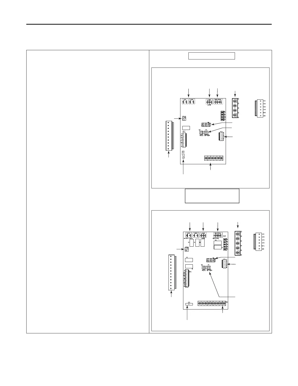
Low Voltage Terminal Strip
10 Pin
Connector
(ILI not used)
LINE
Connections
EAC, HUM
Dry Contacts
Neutral
Connections
7 Segment LED
MENU and OPTION
Select Buttons
5 Amp Fuse
Flame Current
FP
HLI
W R G B/C Y2Y/Y1
Inducer/Igniter
Connector
IGN-N
IND-N
IND-H
IGN-H
MV
GND
TH
MVC
HLO
PS1
TR
ILI
24/120 VAC
MAY BE USED
IFC
6 Pin CTM Motor
Connector
Tap 1 - Low Speed
Tap 2
Tap 3
Tap 4
Tap 5 - High Speed
Common
6 Pin CTM
Connector
S8X1 IFC Component Layout
Low Voltage Terminal Strip
12 Pin
Connector
(ILI not used)
LINE
Connections
EAC, HUM
Dry Contacts
Neutral
Connections
Inducer/Igniter
Connector
7 Segment LED
MENU and OPTION
Select Buttons
5 Amp Fuse
Flame Current
FP
HLI
IGN-N
BK W2 W1 R G B/C Y2 Y1 O
IND-N
IND-LO
IND-HI
IGN-H
MVH
MVL
GND
PS2
TH
MVC
HLO
PS1
TR
ILI
6 Pin CTM Motor
Connector
Tap 1 - Low Speed
Tap 2
Tap 3
Tap 4
Tap 5 - High Speed
Common
6 Pin CTM
Connector
S8X2 IFC Component Layout
IInntteeggrraatteedd FFuurrnnaaccee CCoonnttrrooll DDiissppllaayy CCooddeess

Related product manuals