EasyManua.ls Logo

Trane THC072E - Page 15

Trane THC072E
68 pages
Print Icon
To Next Page IconTo Next Page
To Next Page IconTo Next Page
To Previous Page IconTo Previous Page
To Previous Page IconTo Previous Page
Loading...
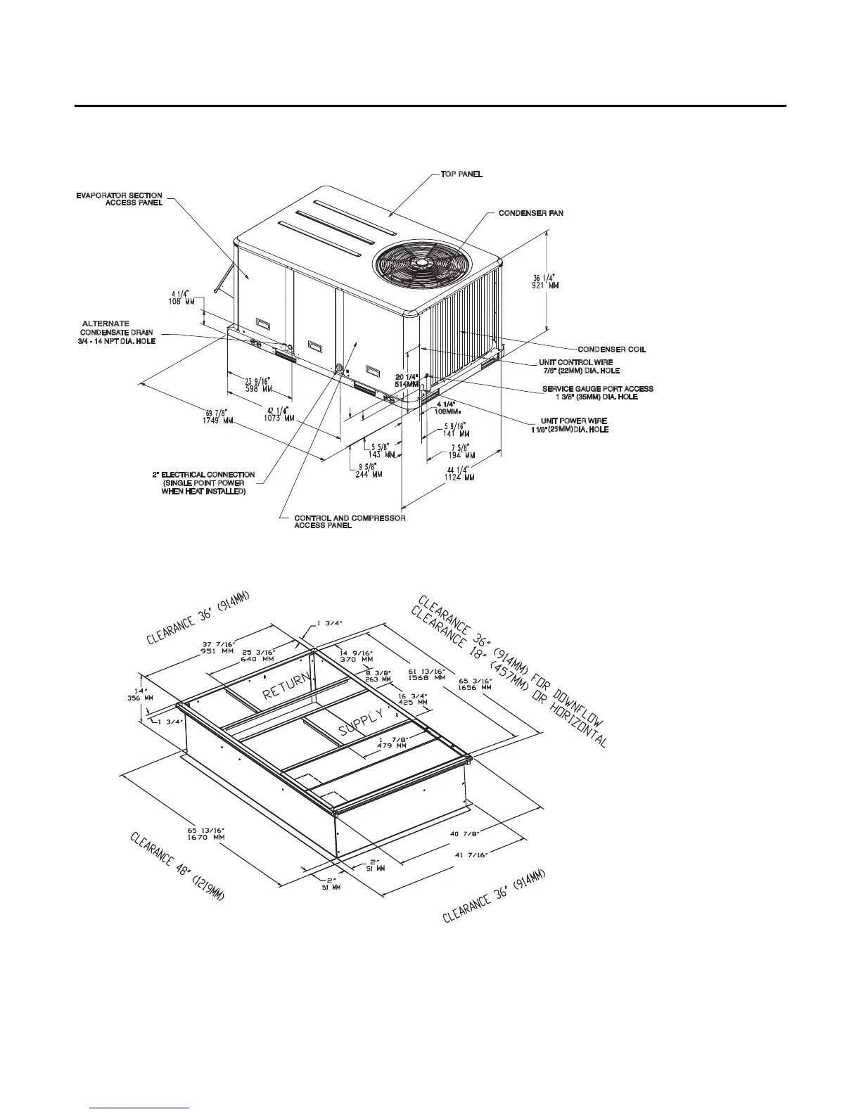
Unit Dimensions
RT-SVX22M-EN 15
Figure 2. 3-5 ton standard efficiency, 3 ton high efficiency
Note: All dimensions are in inches/millimeters.
Figure 3. 3-5 ton standard efficiency, 3 ton high efficiency - roof curb
Note: All dimensions are in inches/millimeters.
7
44
44
MM
MM
44
44
MM
MM
1038
1038
MM
MM
1053
1053
MM
MM

Table of Contents

Related product manuals