EasyManua.ls Logo

Trane *UH1B060A9361A - Page 5

Trane *UH1B060A9361A
40 pages
To Next Page IconTo Next Page
To Next Page IconTo Next Page
To Previous Page IconTo Previous Page
To Previous Page IconTo Previous Page
Loading...
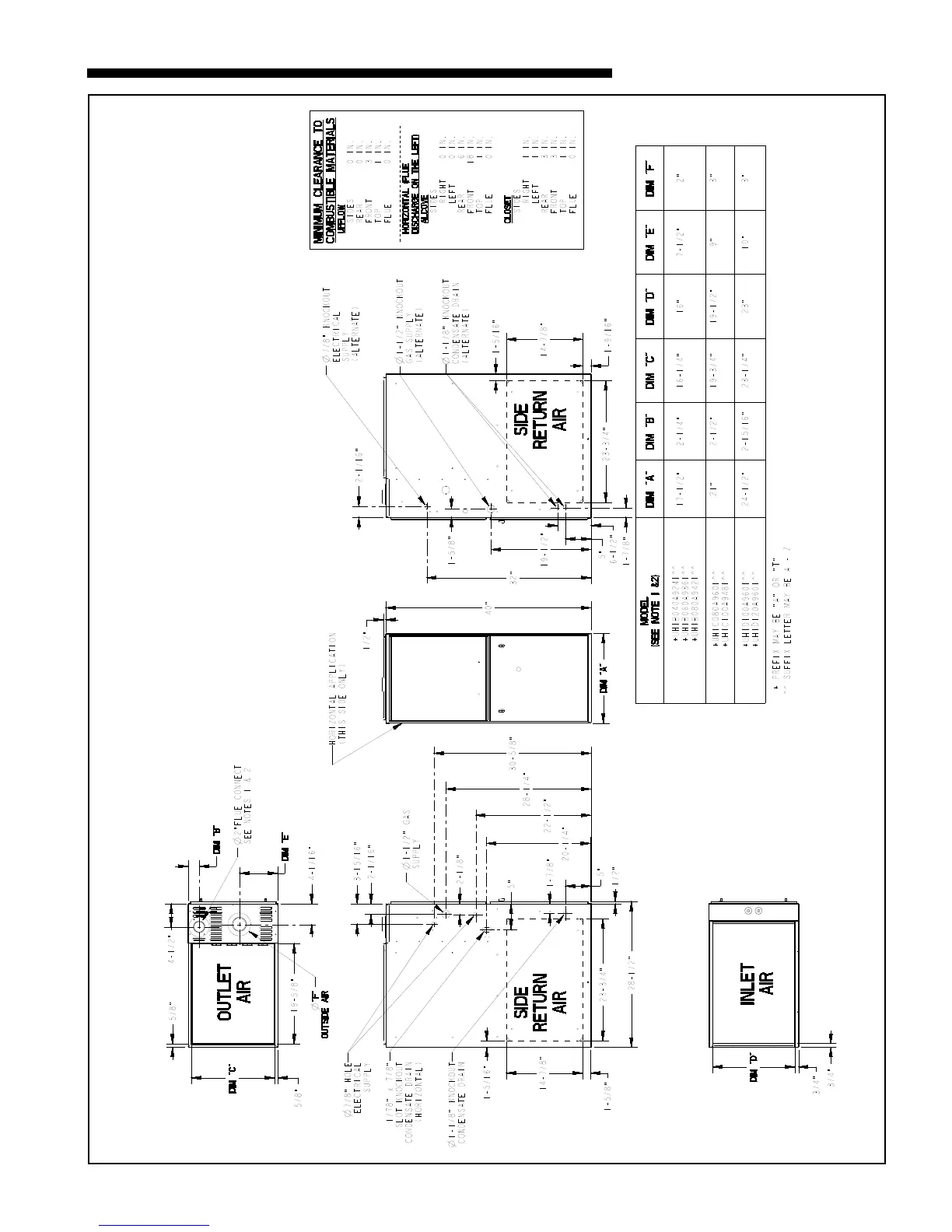
18-CD29D1-3 5
Installer’s Guide
From Dwg. C341884 Rev. 9
*UH1 OUTLINE DRAWING, UPFLOW / HORIZONTAL
(ALL DIMENSIONS ARE IN INCHES)
1. *UH1D120A9601 REQUIRES 3” DIAMETER VENT PIPE.
*UH1C100A9481 & UH1D100A9601 REQUIRES 2-1/2” OR 3”
DIAMETER VENT PIPE.
2. DIAMETER OF VENT PIPE MAY BE LIMITED TO 2-1/2” OR 3”
ON SOME MODELS AT DIFFERENT ALTITUDES. REFER TO THE
VENT LENGTH TABLE FOR PROPER APPLICATION.

Related product manuals