EasyManua.ls Logo

Trane *UH1B080A9421A - Furnace Wiring and Twinning; Twinning Furnaces Requirements; 1 Stage Furnace Field Wiring Diagram

Trane *UH1B080A9421A
40 pages
Print Icon
To Next Page IconTo Next Page
To Next Page IconTo Next Page
To Previous Page IconTo Previous Page
To Previous Page IconTo Previous Page
Loading...
28 18-CD29D1-3
Installer’s Guide
NOTE:
Use 1/2" or larger PVC or CPVC pipe and fittings as re-
quired for drain connections (fittings, pipe and solvent
cement not provided).
NOTE:
A corrosion resistant condensate pump must be used
if a pump is required for a specific drain system.
IMPORTANT:
The condensate drain should be installed with provi-
sions to prevent winter freeze-up of the condensate
drain line. Frozen condensate will block drains, result-
ing in furnace shutdown. If the drain line cannot be in-
stalled in a conditioned space, then UL listed heat tape
should be applied as required to prevent freezing (per
manufacturer’s instructions). The heat tape should be
rated at 5 or 6 watts per foot at 120 volts. Self-regulat-
ing (preferred) or thermostatically controlled heat tape
is required.
SEE
NOTE 6
From drawing B341437 Rv 1
FURNACE
TWIN
SEE
NOTE 7
B/C
B/C
TO 115 V 1 PH.,
60 HZ., POWER
SUPPLY PER
LOCAL CODES
HUM SEE
NOTE 5
EAC SEE
NOTE 5
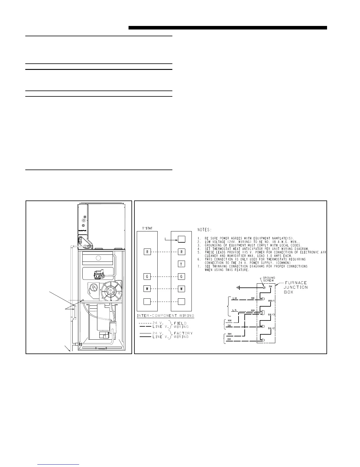
FIELD WIRING DIAGRAM FOR 1 STAGE FURNACE
1 STAGE HEATING
USING A 1 STAGE HEATING THERMOSTAT
NO COOLING
Primary drain vent stack
must terminate below
secondary heat exchanger
condensate drain outlet.
To drain opening
If upflow furnace is installed
over a finished ceiling, overflow
from the primary drain vent
stack must flow into an auxillary
drain pan to prevent damage to
the finished ceiling below.
Q
Evaporator and furnace condensate drain piping may
be manifolded together as shown in Figure 51. A pri-
mary drain vent stack must be installed and termi-
nated below the outlet of the secondary heat exchanger
drain connection to prevent water from damaging fur-
nace controls if the primary drain outlet plugs up.
Where the furnace is installed above a finished ceiling,
the primary drain vent stack must be installed such
that overflow from the vent stack opening will flow into
an axillary drain pan in order to prevent water damage
to the finished ceiling below.
TWINNING FURNACES
These furnaces may be twinned. Twinning requires that
two furnaces with the same configuration, capacity, and
airflow must be used. They shall have common returns
with equal pressure drops or ducts with equivalent
lengths and sizes. See Field Wiring Diagrams for proper
hookup.

Related product manuals