EasyManua.ls Logo

Trane *UH2C100A9V5VA - Page 6

Trane *UH2C100A9V5VA
46 pages
Print Icon
To Next Page IconTo Next Page
To Next Page IconTo Next Page
To Previous Page IconTo Previous Page
To Previous Page IconTo Previous Page
Loading...
6 18-CD26D1-10
Installer’s Guide
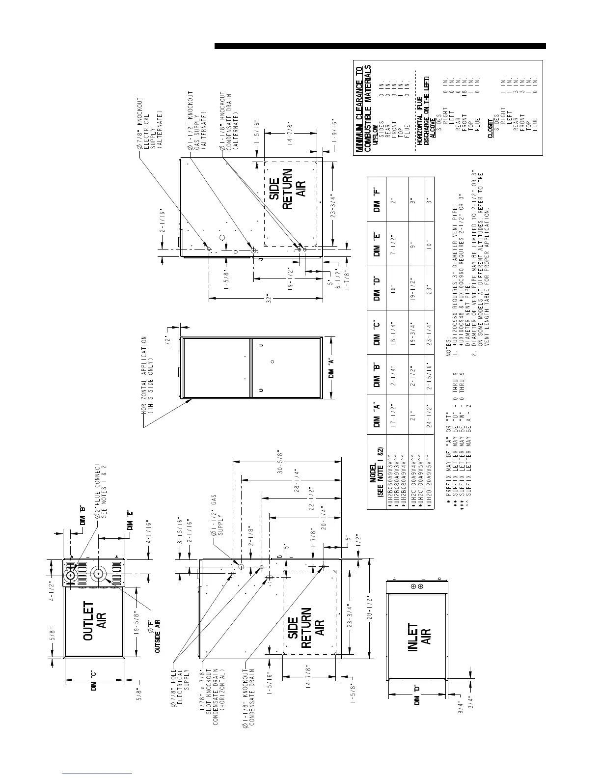
Figure 2. Upflow Outline Drawing

Other manuals for Trane *UH2C100A9V5VA

Related product manuals