EasyManua.ls Logo

Transas Class B - Drawings; Packing List

Transas Class B
33 pages
Print Icon
To Next Page IconTo Next Page
To Next Page IconTo Next Page
To Previous Page IconTo Previous Page
To Previous Page IconTo Previous Page
Loading...
LD2103 V3.0 Page 22 of 33
SRT Marine
Instruction Manual
SRT-MTB
©
Class B Marine AIS
Drawings
Packing list
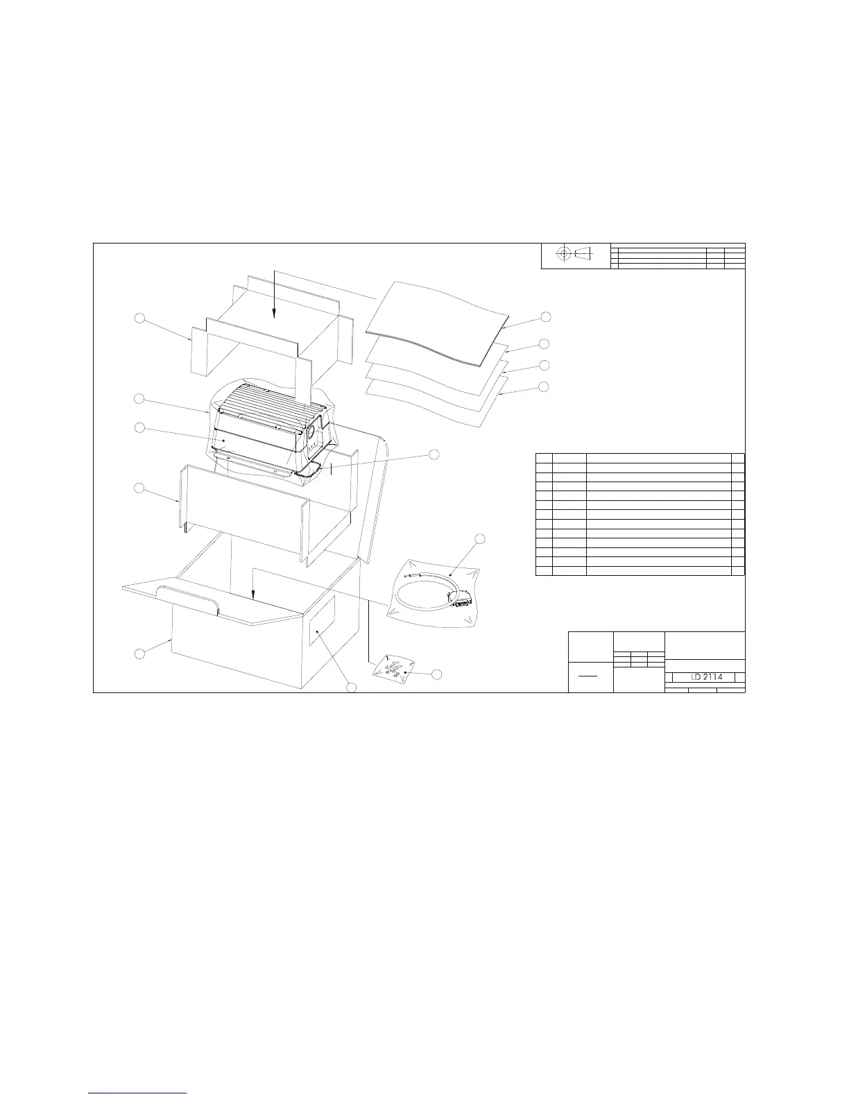
AIS CLASS B TRANSPONDER
PACKED ASSEMBLY
2
1 PRODUCTION RELEASE 23/2/06
ITEM SRT PART No. DESCRIPTION QTY
1 LD2095 AIS CLASS B TRANSPONDER UNIT 1
2 NA POLYTHENE BAG 300 x 300 mm 1
4 LD2098 OUTER PACKING CARTON 1
5 LD2099 INNER PACKING (2 ITEMS) 1
6 NA CARTON IDENTIFICATION LABEL 1
7 LD2103 INSTRUCTION MANUAL 1
8 LD2104 INSTALLATION TEMPLATE 1
10 LD2111 UNIT DIMENSIONS DRAWING 1
NA = NOT APPLICABLE
9 LD2110 INSTALLATION DIAGRAM 1
1
2
3
5
5
4
6
7
8
9
10
11 LD2121 POWER CABLE ASSEMBLY, KIT 3 (0.5m LONG) 1
12 LD2134 MOUNTING SCREW KIT 1
11
12
2 MAGNET PACK REMOVED 15/6/06
DRAWN
CHECKED
UNLESS OTHERWISE SPECIFIED
DIMENSIONS ARE IN MILLIMETERS
ANGLES ± 0.5°
0.0 ± 0.2 0.00 ± 0.1
NAME
M. KENDALL
DATE
06/15/06
TITLE
SIZE
A1
DWG NO REV
FILE NAME: LD2114-2.dft
SC ALE: SHEET 1 OF 1
REVISION HISTORY
REV DESCRIPTION DATE APPROVED
SOFTWARE RADIO TECHNOLOGY PLC
WESTFIELD INDUSTRIAL ESTATE
MIDSOMER NORTON, BATH, UK.
BA3 4BS
COPYRIGHT
THIS DRAWING IS NOT TO BE REPRO DUCED
WITHOUT WRITTEN PERMISSION FROM SRT PLC.
MATERIAL
FINISH
THIRD ANGLE PROJECTION
REFER TO LIST