EasyManua.ls Logo

Tridonic PRO Series - Wiring Type and Cross Section; Battery Connection

Default Icon
15 pages
Print Icon
To Next Page IconTo Next Page
To Next Page IconTo Next Page
To Previous Page IconTo Previous Page
To Previous Page IconTo Previous Page
Loading...
www.tridonic.com
7
Subject to change without notice. Information provided without guarantee.
Data sheet 10/20-EM091-6
Emergency lighting units
EM converterLED
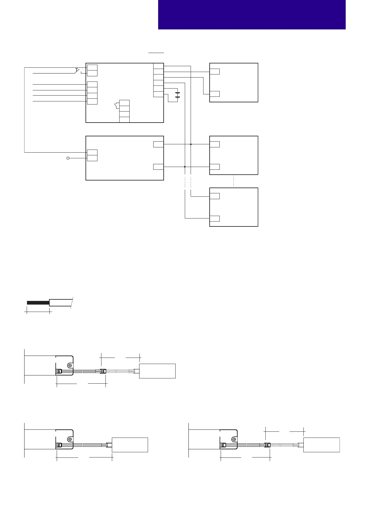
EM converterLED PRO with a standard LED LED Driver and parallel operation of LED modules
Neutral
+
+
+
+
P
O
L
N
EM ConverterLED
PRO
Test
switch
Indicator
LED
Control gear
LED
LED
Control gear
Battery
Battery
LED Module
Emergency
+
+
LED Module
+
LED Module
LED control gear
max. 150 W in operation
L
out
L
in
N
Dali
Dali
L
Neutral
Dali
Dali
Un-Switched Line
Switched Line out
Switched Line in
One LED module is operated in emergency mode.
All LED modules are operated in mains mode.
8 – 9 mm
wire preparation:
0.5 – 1.5 mm²
3.2 Wiring type and cross section
Solid wire with a cross section of 0.5 – 1.5 mm². Strip 8 – 9 mm of insulation
from the cables to ensure perfect operation of terminals.
Wiring: LED module/LED Driver/supply
3.3 Battery connection
LiFePO
4
: Direct connection
NiMH: Connection with extension
When using an EM converterLED in combination with a NiMH battery, order the
CONNECTION CABLE NiMH 500mm seperately.
LiFePO
4
: Connection with extension
Battery
300
EM converterLED
Battery
500
300
EM converterLED
Battery
500
300
EM converterLED

Other manuals for Tridonic PRO Series

Related product manuals