EasyManua.ls Logo

Trio ER45E - Physical Dimensions - Er45 E Mounting Cradle;Din Rail Mount (Optional); Mounting Cradle; Din Rail Mount (Optional)

Trio ER45E
68 pages
Print Icon
To Next Page IconTo Next Page
To Next Page IconTo Next Page
To Previous Page IconTo Previous Page
To Previous Page IconTo Previous Page
Loading...
Page 24
E Series Ethernet Radio – User Manual
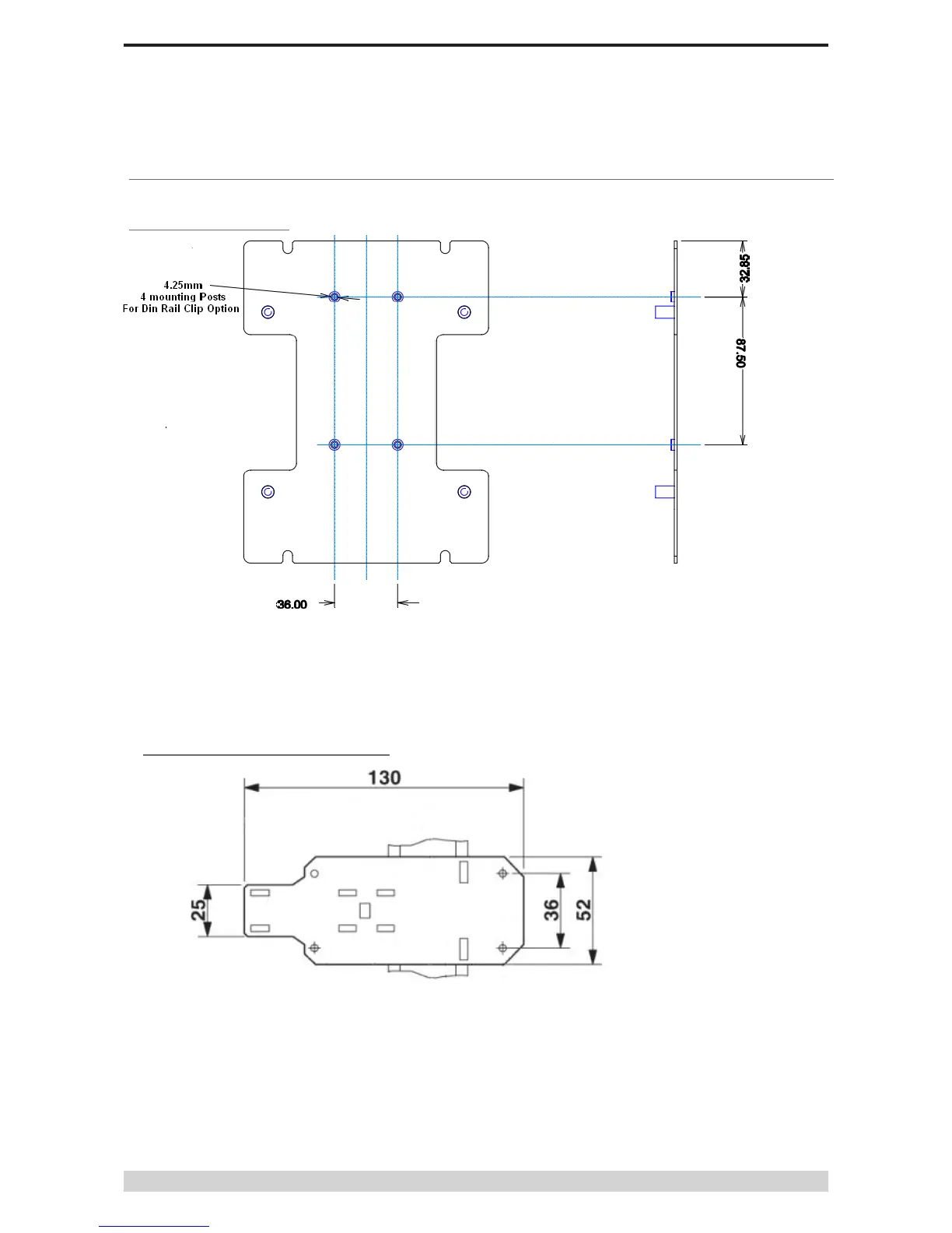
Physical Dimensions - ER45e Mounting Cradle/Din Rail Mount (Optional)
Mounting Cradle
Din Rail Mount (Optional)
Din Rail Mount
The Din Rail Mount is an optional feature. The Mount is screwed onto the bottom of an ER45e Mounting Cradle giving the unit the
ability to be simply ‘clipped’ and Locked onto 3.5mm Din Rail.
3.5mm Din Rail
ER45e Mounting Cradle
The ER45e mounting cradle comes standard with the x4 mounting posts. If you want to purchase a new unit equip with the Din
Rail mount, you can either request to have the units sent with the Din Rail mount already screwed onto the mounting cradle
or have the Din Rail mount supplied separately along with x4 screws and x4 washers (screws: 3x8 Pan head, Washers: 3mm
Spring washers). In the case of attaching the Din rail mounts to older radios, please ensure that you radio’s mounting cradle
has the x4 mounting posts.

Table of Contents

Related product manuals