Home
turbofan
Convection Oven
e31D4
Page 5 (Specifications)
turbofan e31D4 - Specifications
20 pages
Manual
Save Page as PDF
To Next Page
To Next Page
To Previous Page
To Previous Page
Loading...
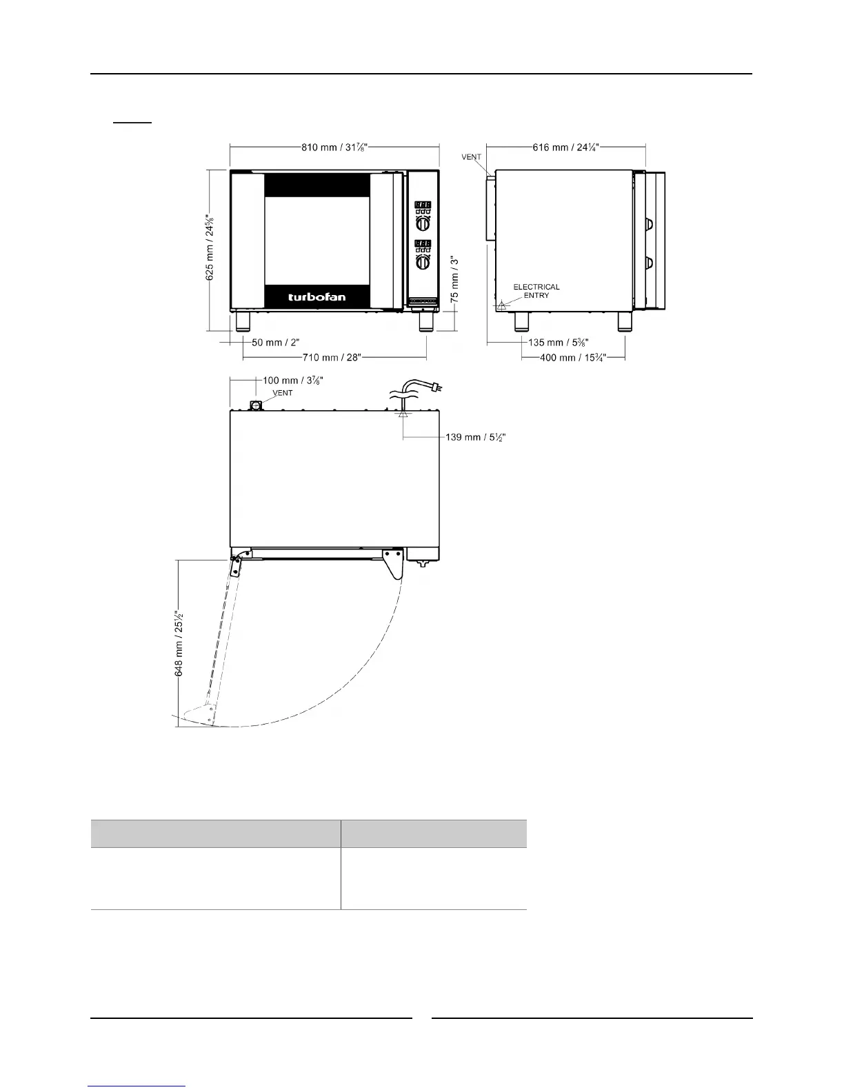
Specifications
3
E31D4
Oven Tray Details
Tray Capacity
Tray Spacing
208V, 1P+N+E,
50/60HZ,
2.9
kW
220V, 1P+N+E,
50/60HZ,
3.1
kW
230-240V, 1P+N+E,
50/60HZ,
3.1
kW
4 x GN 1/1 Pan
4 x US ½ Pan
80 mm / 3
⅛
”
Oven Power Ratings
4
6
Table of Contents
Main Page
Default Chapter
3
Table of Contents
3
Introduction
4
Safety Information
4
Specifications
5
Installation
6
Installation Requirements
6
Unpacking
6
Location
6
Clearances
6
Stand Mounted Ovens
6
Electrical Connection
7
Positioning and Levelling of Oven
7
Initial Start-Up
7
Commissioning
7
Operation
8
Operation Guide
8
Oven Control Panel
8
Using the Oven - Manual Mode
9
Cooking in Program Mode
10
Setting the Oven Programs
11
Operator Accessible Parameters
12
Setting the Operator Accessible Parameters
12
Table of Operator Accessible Parameters
12
Cleaning and Maintenance
13
Cleaning Guidelines
13
Oven Cleaning
13
Periodic Maintenance
14
Fault Finding
15
Electrical Schematics
16
Replacement Parts List
17
Appendix 1 - Reversing the Oven Door
18
Related product manuals
turbofan E33T5
39 pages
turbofan E33D5
25 pages
turbofan E22M3
17 pages