EasyManua.ls Logo

Tylo 1105-1202 - Page 4

Tylo 1105-1202
15 pages
Print Icon
To Next Page IconTo Next Page
To Next Page IconTo Next Page
To Previous Page IconTo Previous Page
To Previous Page IconTo Previous Page
Loading...
4211-83-G 09-29-16 7014024 314 SKLE 70 H
INSTALLATION AND OPERATING INSTRUCTIONS
Page 4
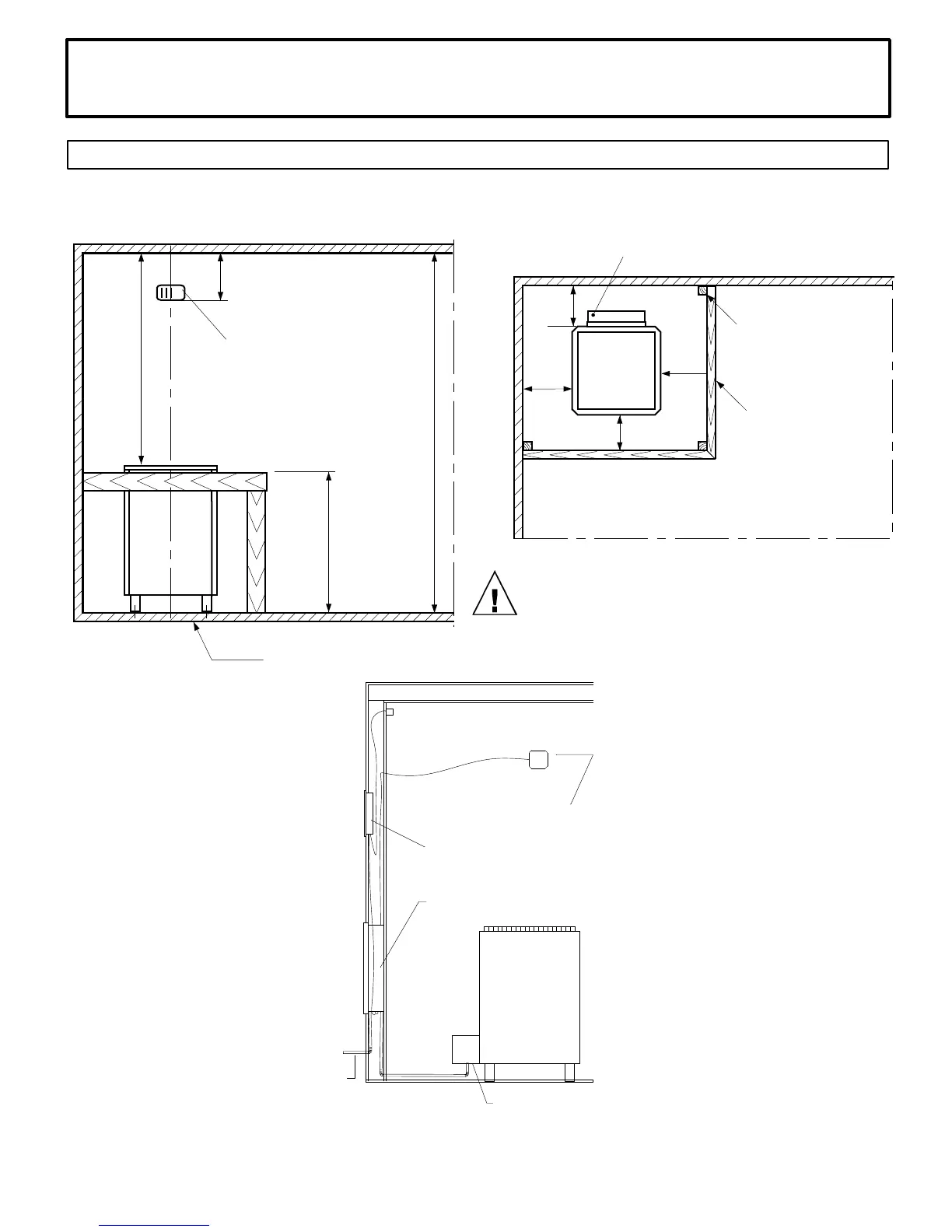
DIAGRAM 1
Sensor
2"
49½"
min.
78"
min.
27"
max.
High Limit Control Reset
1"
min.
2"
min.
4-1/2"
min.
1x1"
wooden
post
¾ x 4"
wooden
rail
1"
min.
OBSERVING MINIMUM DISTANCES IS
REQUIRED TO REDUCE THE RISK OF FIRE
BOLTS
Laava Heater
1105-XXX2
Note 1: The contactor box may be mounted anywhere outside the sauna room.
A location should be selected so the front cover is accessible for service and the
noise of the contactor pulling in will not be a nuisance.
Provide a service loop into the sauna room to the proposed heater location.
Locate the sensor 2"
from ceiling directly
above the heater.
Room light outlet box
70" up from the floor.
High Limit Reset
Power input to
contactor box.
Locate the control
outside the sauna room.
Locate CB 7-1 or 7-3
contactor box outside
the sauna room. (See Note 1)

Related product manuals