EasyManua.ls Logo

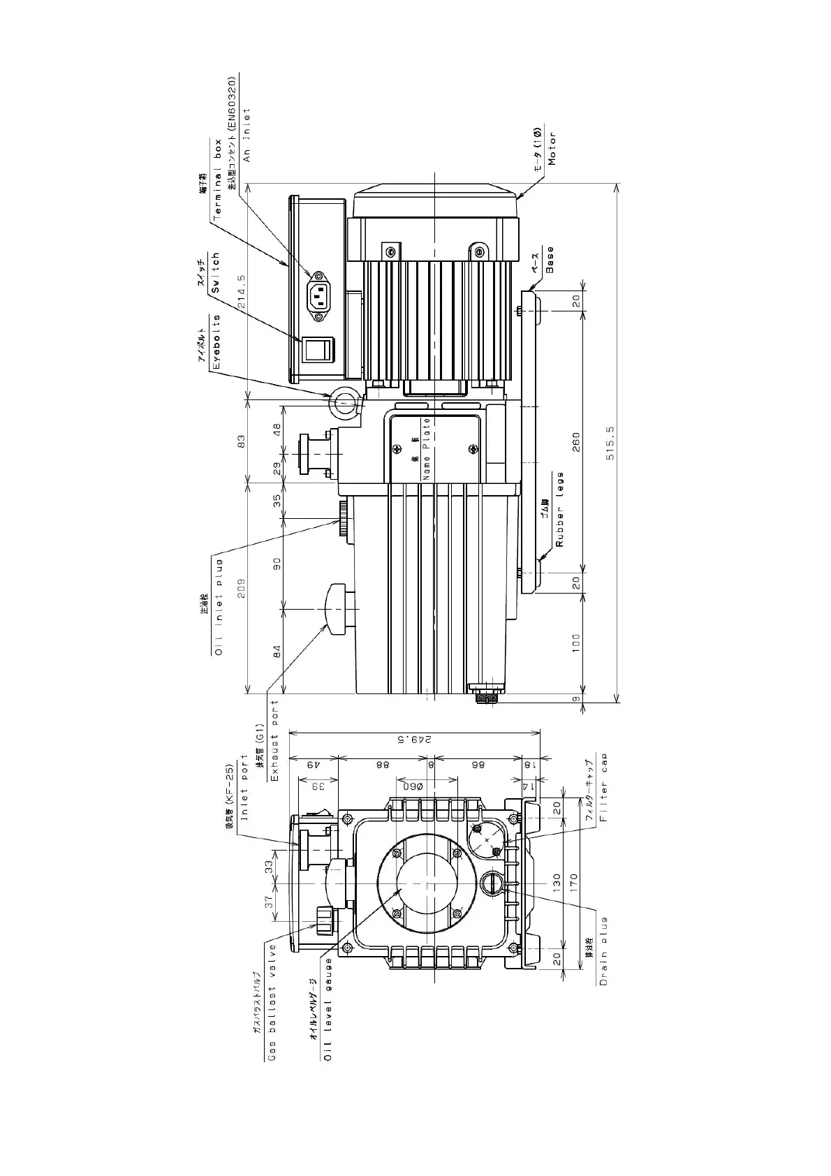
Ulvac GLD-040 - Fig. 2 Dimensional Drawing of GLD-202 BB Oil Sealed Rotary Vacuum Pump

Ulvac GLD-040
54 pages
Print Icon
To Next Page IconTo Next Page
To Next Page IconTo Next Page
To Previous Page IconTo Previous Page
To Previous Page IconTo Previous Page
Loading...
-5-
Fig. 2 Dimensional drawing of GLD-202BB oil sealed rotary vacuum pump

Table of Contents

Related product manuals