EasyManua.ls Logo

Unitronics V200-18-E4XB - Page 9

Unitronics V200-18-E4XB
16 pages
Print Icon
To Next Page IconTo Next Page
To Next Page IconTo Next Page
To Previous Page IconTo Previous Page
To Previous Page IconTo Previous Page
Loading...
6/05 V200-18-E4XB Snap-in I/O Module
Unitronics 9
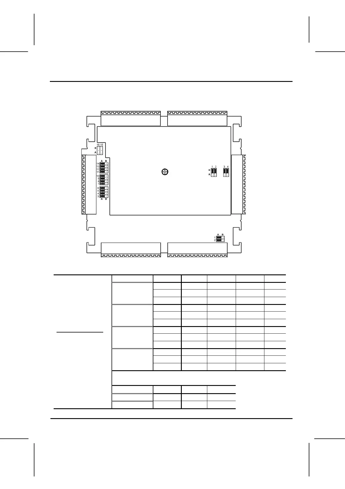
Select the desired function by changing the jumper settings according to the figure and tables shown below.
Analog Input Jumpers
Jumper # Voltage* Current T/C or mV PT100
14 A B B A
13 A B B A
Analog input 3
12 A A B B
11 A B B A
10 A B B A
Analog input 2
9 A A B B
8 A B B A
7 A B B A
Analog input 1
6 A A B B
5 A B B A
4 A B B A
Bottom PCB board
Analog input 0
3 A A B B
Digital Output Jumpers
Jumper # PNP* NPN
Digital Output 0
1 A B
Note that Jumpers #15 &
16 are not used
Digital Output 1
2 A B
i4 Automation Ltd - 01480 395256

Related product manuals