EasyManua.ls Logo

USSC King 2007B - Chimney Connection

USSC King 2007B
16 pages
Print Icon
To Next Page IconTo Next Page
To Next Page IconTo Next Page
To Previous Page IconTo Previous Page
To Previous Page IconTo Previous Page
Loading...
7

Two basic types of chimneys are approved for
use with solid fuel. Factory-built and masonry.
Factory-built chimney must comply with UL
standard in the US.
Do not expect your stove or furnace to create
draft. Draft is not a function of the appliance.
Draft is purely a function of the chimney. Mod-
ern stoves and furnaces are much more air-
tight and efcient than those of the past, and,
therefore, require greater draft. A minimum
of .05" measured in water column (gauges to
measure chimney draft are readily available
at stove shops and are economical to pur-
chase or rent) is required for proper drafting
to prevent back-pufng, smoke spillage, and
to maximize performance.
Chimneys perform two functions - one of which
is apparent: The chimney provides a means
for exhausting smoke and ue gases result-
ing from combustion of the fuel. Secondarily,
though, the chimney provides "Draft" which
allows oxygen to be continuously introduced
into the appliance, so that proper combustion is
possible. As of April 1, 1987, all wood heaters
and furnaces manufactured by United States
Stove Company should be installed using a
factory-built chimney that meets the "Type HT"
requirement of UL 103 (when a factory-built
chimney is used).
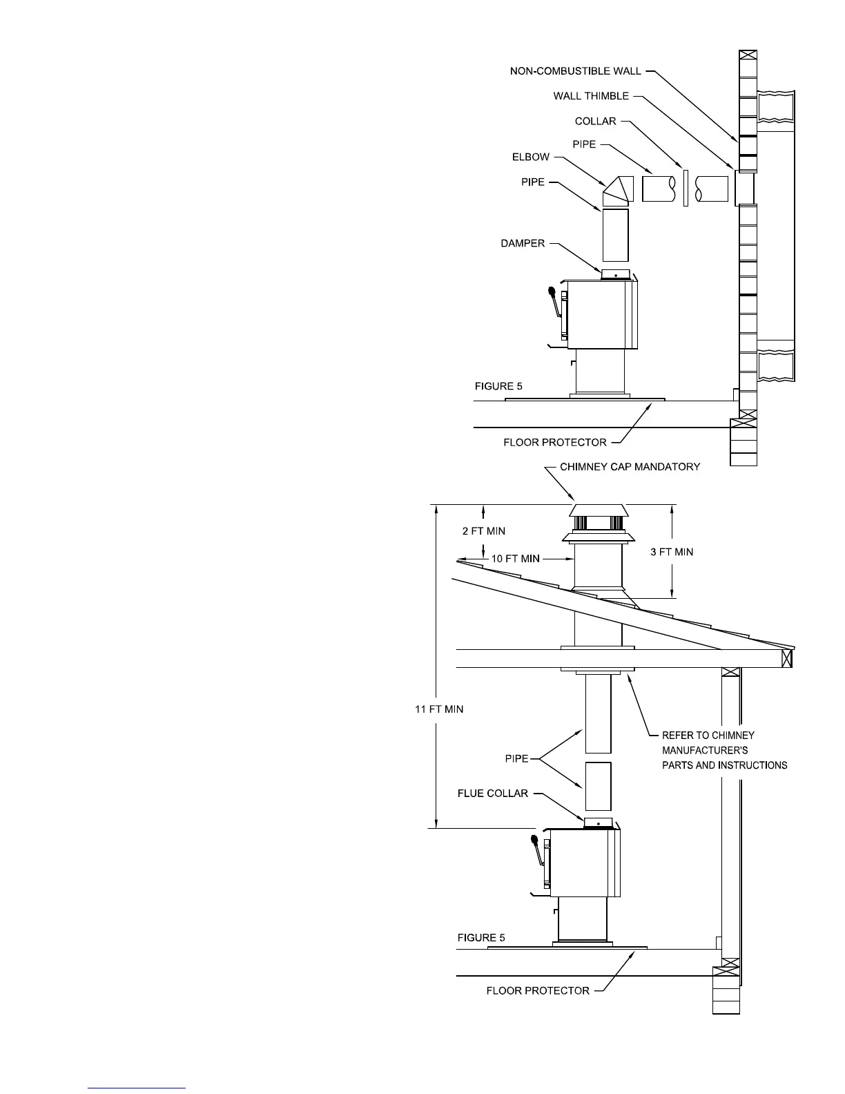
A chimney connector shall not pass through
an attic, roof space, closet, oor, ceiling, or
similar concealed space. Where passage
through a wall or partition of combustible
construction is desired, the installation must
conform with NFPA 211.

Related product manuals