EasyManua.ls Logo

VAF instruments Shapoli 620 - Page 30

VAF instruments Shapoli 620
36 pages
Print Icon
To Next Page IconTo Next Page
To Next Page IconTo Next Page
To Previous Page IconTo Previous Page
To Previous Page IconTo Previous Page
Loading...
29
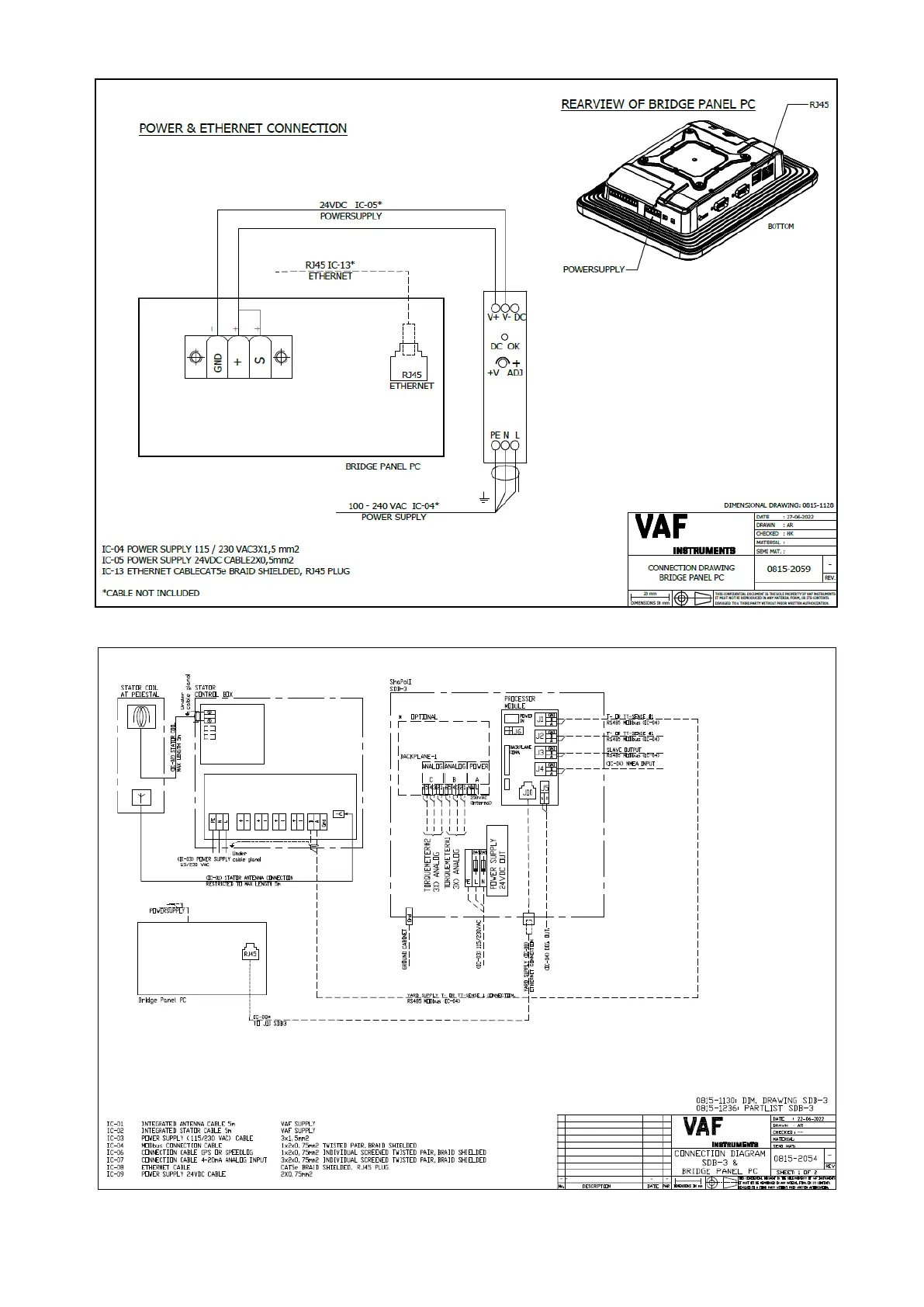
Drawing 0815-2059 Connection Drawing Bridge Panel PC
Drawing 0815-2054 Sheet 1 of 2 Connection diagram SDB-3 & Bridge Panel PC