EasyManua.ls Logo

Vaillant ecoMAX 613/2 E - Page 24

Vaillant ecoMAX 613/2 E
56 pages
Print Icon
To Next Page IconTo Next Page
To Next Page IconTo Next Page
To Previous Page IconTo Previous Page
To Previous Page IconTo Previous Page
Loading...
24
4 Boiler installation sequence
Instructions for installation and servicing ecoMAX24
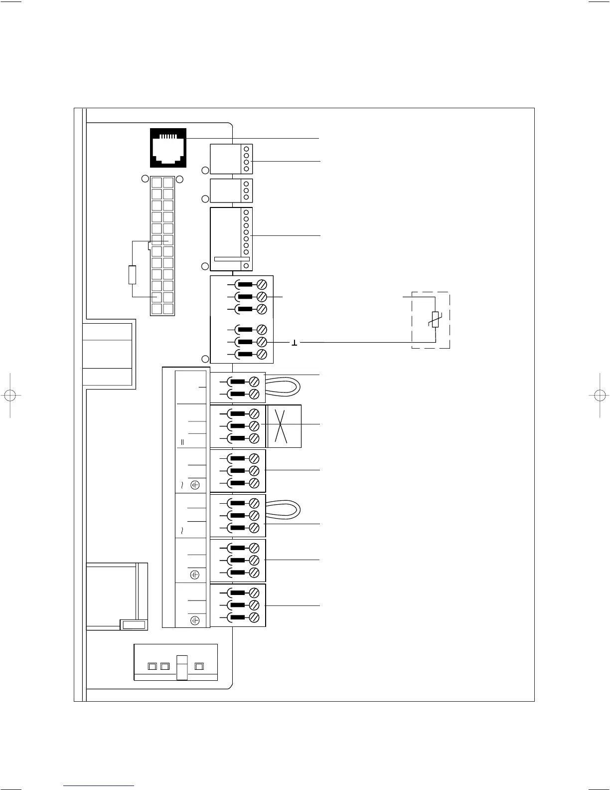
4.16.3 Electronic board layout (continued)
Fig. 4.15: Connection wiring ecoMAX 635, 835
987
543
N
L
NL
Pump 2. Pump
Contact
therm
L N
24V I
230V
RT 24V
230V
RT 230V
X 4
X 10
X 7
X 8
X 2
13
X 6
1 1
1
1
1
Coding resistance
Diagnostic connection
Diverter valve (835 only)
Connection for multi–function module
306 253
Room thermostat 24 V: Connections 7, 8 and 9
Caution: DO NOT connect directly to mains
supply: danger of irreparable damage to elec-
tronic system
Room thermostat 230 V/50 Hz
(remove bridge for connection)
Heating pump connection
Mains power supply: 230 V/50 Hz
Under–floor heating overload thermostat, 20 V
(remove bridge for connection)
Edge connector for Vaillant
weather compensator
External CH pump
(adjustment via diagnostic system, diagnostic
setting d.16)
83 41 77_12 GB04.04.qxd 22.09.2004 12:34 Uhr Seite 24

Table of Contents

Other manuals for Vaillant ecoMAX 613/2 E

Related product manuals