EasyManua.ls Logo

Valtra 6250 - Page 232

Valtra 6250
1361 pages
Print Icon
To Next Page IconTo Next Page
To Next Page IconTo Next Page
To Previous Page IconTo Previous Page
To Previous Page IconTo Previous Page
Loading...
225
Model Code Page
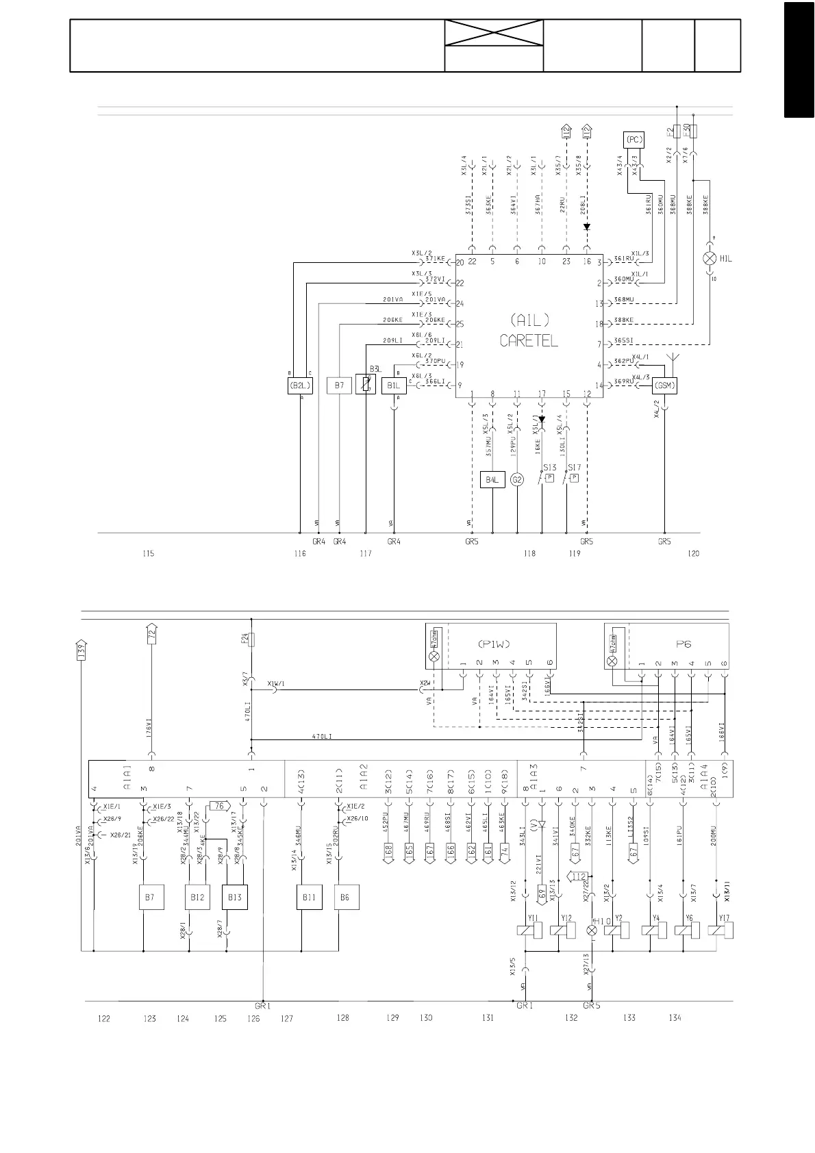
31. Tractor electrical system
1. 8. 2000
6250--8950 310 75
AC 5.2 9
AC 5.2 10

Table of Contents

Related product manuals