EasyManua.ls Logo

Valtra 6250 - 4 WD Clutch, Description

Valtra 6250
1361 pages
Print Icon
To Next Page IconTo Next Page
To Next Page IconTo Next Page
To Previous Page IconTo Previous Page
To Previous Page IconTo Previous Page
Loading...
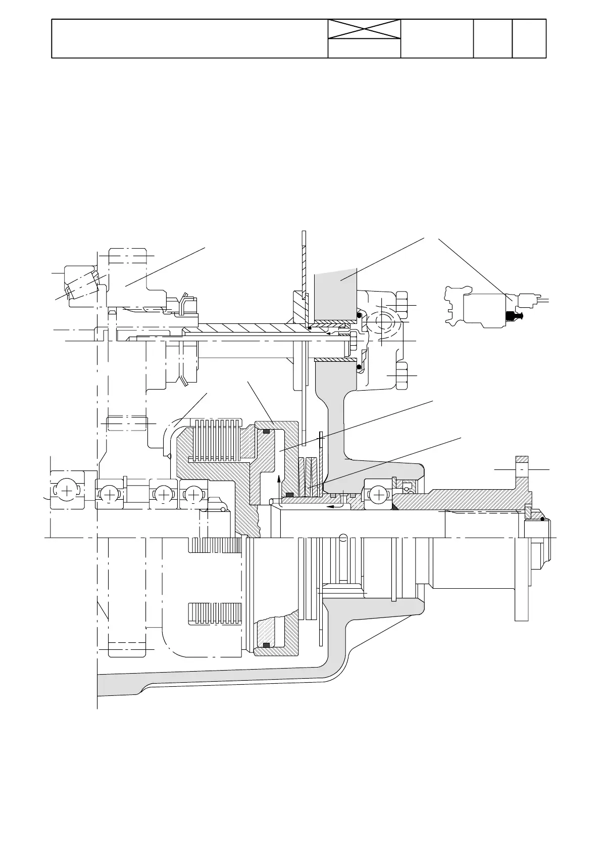
Not oil pressure in the clutch: cup springs (3)
press the clutch disc pack via press cylinder (4) to
the engaged position and power is transmitted to the
front wheels.
Oil pressure in the clutch: Pressure oil acts in the
oil space (5) and cylinder (4) moves against the cup
springs (3) and the multi---disc pack is released.
Po wer is not transmitted to the front wheels
Note! 4WD engages always when the brake pedals
are pressed.
Figure 11. 4WD clutch on tractors equi pped with a 2---step
quick ---shift gear or are without a quick---shift gear
1. Output gear at the front end of the bevel pinion shaft
2.Reverseshuttlehousing
3. Cup springs
4. Press cylinder
5. Oil space
6. Clutch drum, which al ways rotates when th e tractor
moves.Clutch pack steel disc lugs are engaged with the
grooves on the drum.
752
Model Code Page
15. 5. 1993
6000--8750
20440
44. Quick---shift gear, reverse shuttle
and 4WD clutch
4WD clutch
The 4WD clutch is fitted in the lower part of the reverse shuttle
housing. Power from the gearbox to the clutch is transmitted
via a gear wheel at the bevel pinion shaft front end.
4WD is always engaged by cup springs, when the engine is
stopped (pressurised oil does not act in the clutch).
When pressure oil is directed to the 4WD clutch, the multi---
discclutch is released and poweris not transmitted tothefront
wheels.
Front wheel drive is engaged and disengaged electro---hy-
draulically by means of a switch on the range gear leverknob.
4WD solenoid valve is placed on the servo valve block on the
gearbox LH side.
Clutch pressure is directed to the 4WD clutch via an external
pipe from the servovalve block. Low pressure pump supplies
oil to the servo valve block. Clutch pressure is 1,8 MPa and is
limited by a pressure---limiting valve on the servo valve block.
4WD output shaft has been connected to the propeller shaft
with a flange joint or with a sleeve joint on tractors which have
Delta Powershift
1
2
3
4
5
6

Table of Contents

Related product manuals