EasyManua.ls Logo

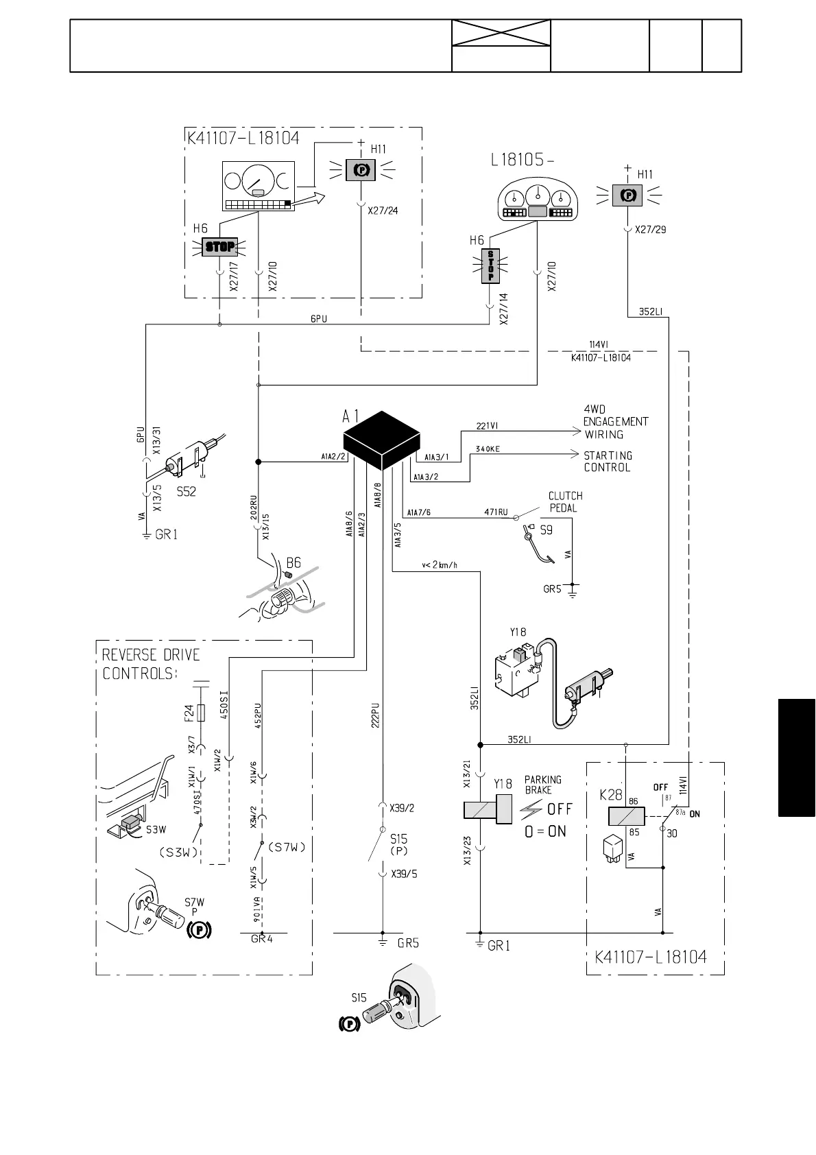
Valtra 6250 - Control of Parking Brake, AC 5.2

Valtra 6250
1361 pages
Print Icon
To Next Page IconTo Next Page
To Next Page IconTo Next Page
To Previous Page IconTo Previous Page
To Previous Page IconTo Previous Page
Loading...
177
Model Code Page
37. Autocontrol 5.2 (K41107---)
1. 8. 2000
371 21
6250--8950
1. 9. 2002
Control of p arking brake, AC 5.2

Table of Contents

Related product manuals