EasyManua.ls Logo

Valtra 6250 - Page 742

Valtra 6250
1361 pages
Print Icon
To Next Page IconTo Next Page
To Next Page IconTo Next Page
To Previous Page IconTo Previous Page
To Previous Page IconTo Previous Page
Loading...
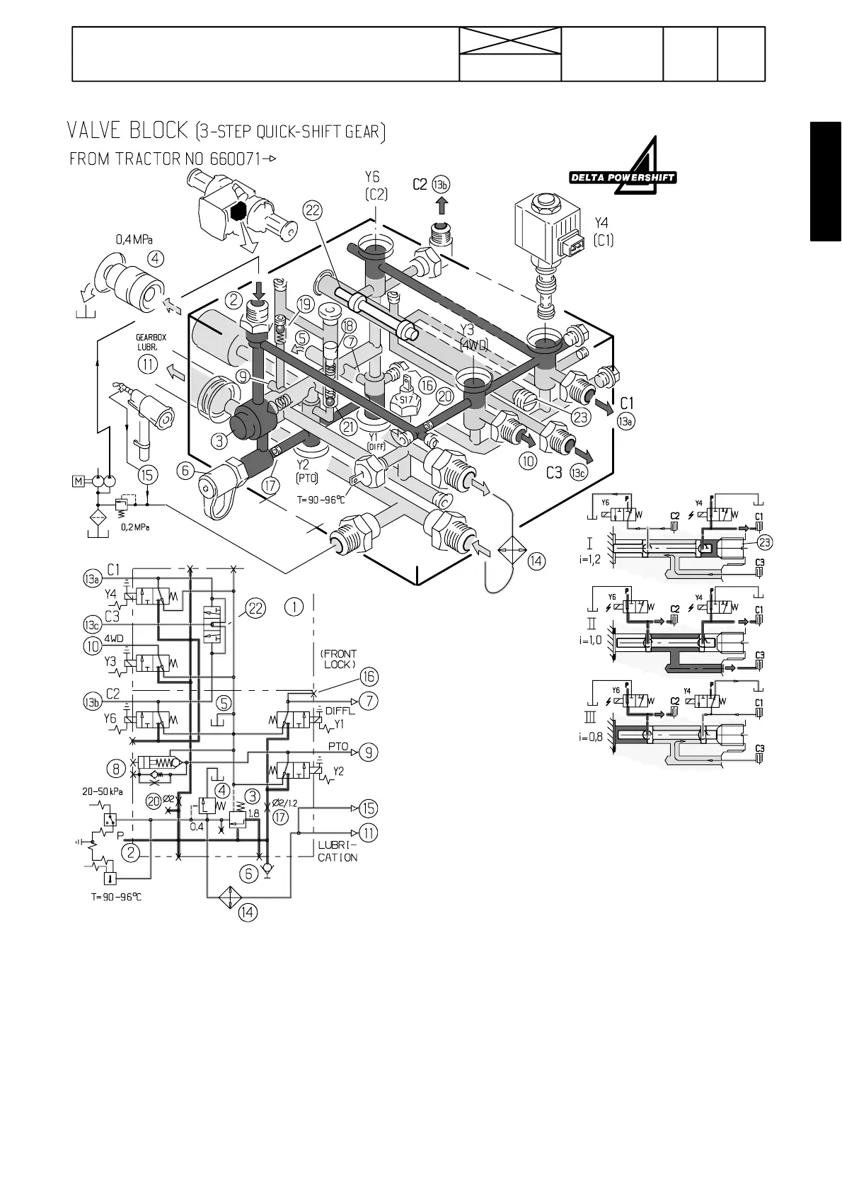
11. Oil to gearbox lubricating system
13a. Pressure oil to gear clutch C1 (see section 44).
13b. Pressure oil to gear clutch C2 (see section 44).
13c. Pressure oil to gear clutch C3 (see section 44).
14. Oil cooler.
15. Connection to return side of working hydraulics.
16. Plug (readiness for front axle diff. lock)
17. Restriction ø 2 mm ( ---661797) or ø 1,2 mm
(661798 ---) eliminates pressure drop when engaging
PTO clutch or diff. lock. On the later valve blocks
(665536 ---) there is a separate pa ssage from the pump
pressure side to the diff. lock solenoid valve. There is res-
triction ø2 mm in this passage. In this way are separated
functions of the diff. lock and the PTO .
18. Piston, PTO cushioning valve
19. Valve ball, PTO cushioning valve
20. Restriction Ø 2mm eliminates pressure drop when
engaging 4WD or quick ---shift gear (Delta Powershift)
21. Valve ball, PTO cushioning valve
22.Valve spool for engaging gear clutch C3.
23. End plug of valve spool (position marked with a
punch mark).
Picture 20C. Servo valve block with effect from ser. no.
660071 --- on trac tors which have Delta Powershift (3---step
quick ---shift gear).
1.Servovalveblock
2. Oil supply from pump
3. Pressure---limiting valve, 1,8 --- 1,9 MPa (18---19 bar)
4. Safety valve 0,4 MPa (4 bar). Protects oil cooler when
hydraulic oil is cold and thick.
5. Tank passage from solenoid valves
6. Pressure---test point (V almet HPR, thread M16)
7. Pressure oil to differential lock.
8. PTO cushioning valve, incl. parts 18, 19, 21.
9. Pressure oil to PTO clutch
10. Pressure oil to 4WD clutch
195
Model Code Page
42 Gearbox
19A420
6000--8750
1. 1. 1995
1. 9. 2002

Table of Contents

Related product manuals