EasyManua.ls Logo

Valtra 6250 - Page 744

Valtra 6250
1361 pages
Print Icon
To Next Page IconTo Next Page
To Next Page IconTo Next Page
To Previous Page IconTo Previous Page
To Previous Page IconTo Previous Page
Loading...
197
Model Code Page
42 Gearbox
20A420
6000--8750
1. 11. 1998
1. 9. 2002
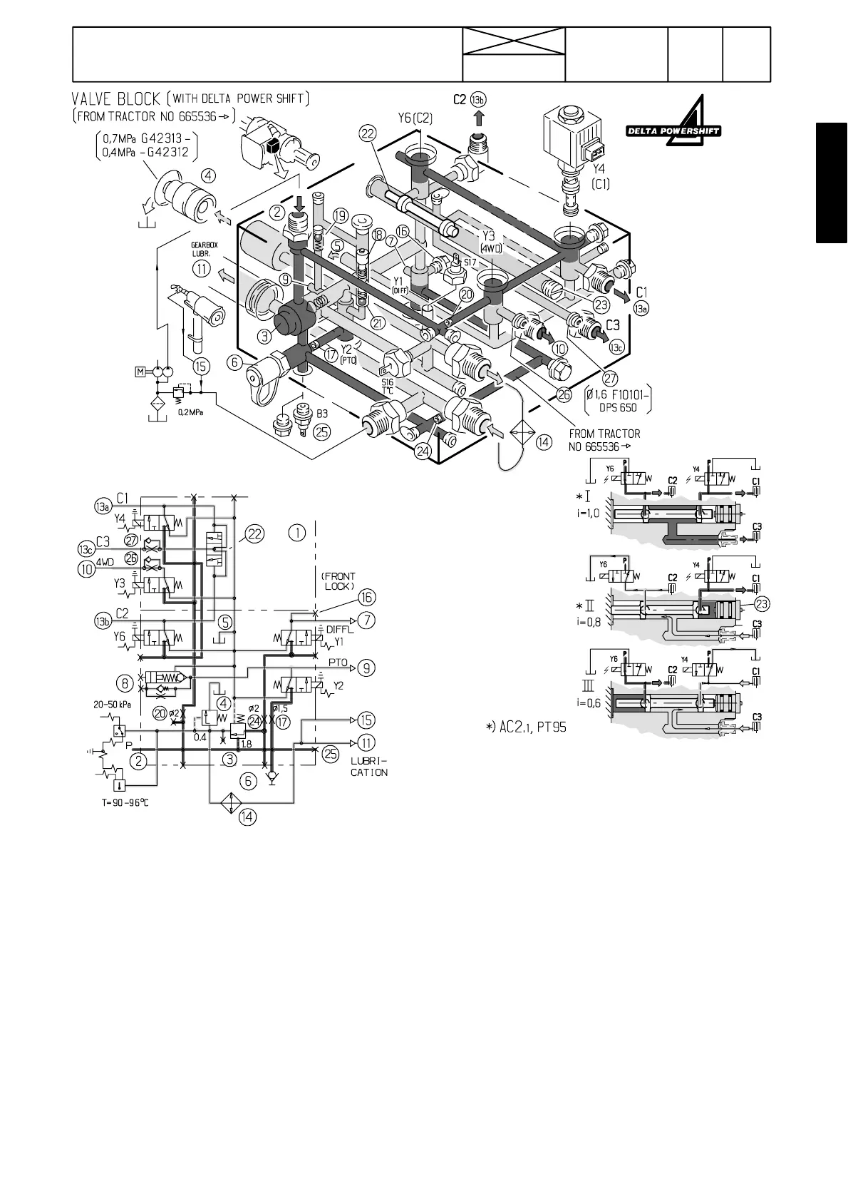
Picture 21A. Servo valve block from ser. no 668103 incl on
tractors which have a mechanical shuttle.
1.Servovalveblock
2. Oil supply from pump
3. Pressure---limiting valve, 1,8 --- 1,9 MPa (18---19 bar)
4. Safety valve 0,4 MPa (4 bar). Protects oil cooler when
hydraulic oil is c old.
5. Tank passage from solenoid valves
6. Pressure---test point (V almet HPR, thread M16)
7. Pressure oil to differential lock.
8. PTO cushioning valve, incl. parts 18, 19, 21.
9. Pressure oil to PTO clutch
10. Pressure oil to 4WD clutch
11. Oil to gearbox lubricating system
13a. Pressure oil to gear clutch C1 (see section 44).
13b. Pressure oil to gear clutch C2 (see section 44).
13c. Pressure oil to gear clutch C3 (see section 44).
14. Oil cooler (oil cooler must not be plugged. In possible
malfunctions, the cooler must be passed with hose)
15. Connection to return side of working hydraulics.
16. Plug (readiness for front axle diff. lock)
17. Restriction ø1,2 mm (661798 ---) and ø1,5 mm
(G412131 ---). eliminates pressure drop when engaging
PTO clutch.
18. Piston, PTO cushioning valve
19. Valve ball, PTO cushioning valve
20. Restriction Ø 2mm eliminates pressure drop when
engaging 4WD or quick ---shift gear (Delta Powershift)
21. Valve ball, PTO cushioning valve
22.Valve spool for engaging gear clutch C3.
23. End plug of valve spool (position marked with a
punch mark).
24. Ø 2 mm restriction eliminates pressure drop when
using differential lock.
25. Temperature sensor for Agrodata ---instrument
(option)
26. Change ---over restriction ø2 mm. Prevents pressure
drop in DPS clutches, when 4WD is disengaged (4WD
clutch becomes pressurised) e.g. when braking.
27. DPS 650 (F10101 ---): Restriction/counter valve 1,6
mm restriction hole) makes the pressure increasing slo-
wer i n the multi ---disc clutch C3 (in other words, the ope-
ning of th e planetary carrier) , a nd in this way prevents the
momentary neutral position of the Delta Powershift.

Table of Contents

Related product manuals